Eladó családi ház Ráckeve 99 000 000 Ft

Leírás

Megvételre kínálok Ráckevén 2db új építésű társas családiházat. Az ingatlanok Ráckeve kedvelt új építési övezetében vannak, közel a Dunaparthoz és a Strandhoz, Termálfürdőhöz.
1-es lakás ára: 99 000 000 Ft
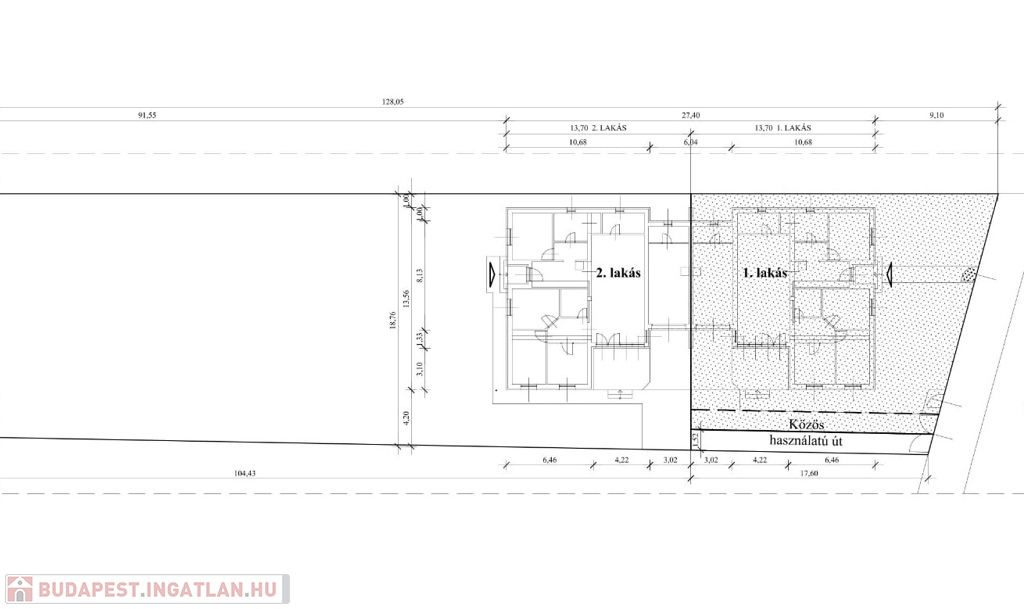
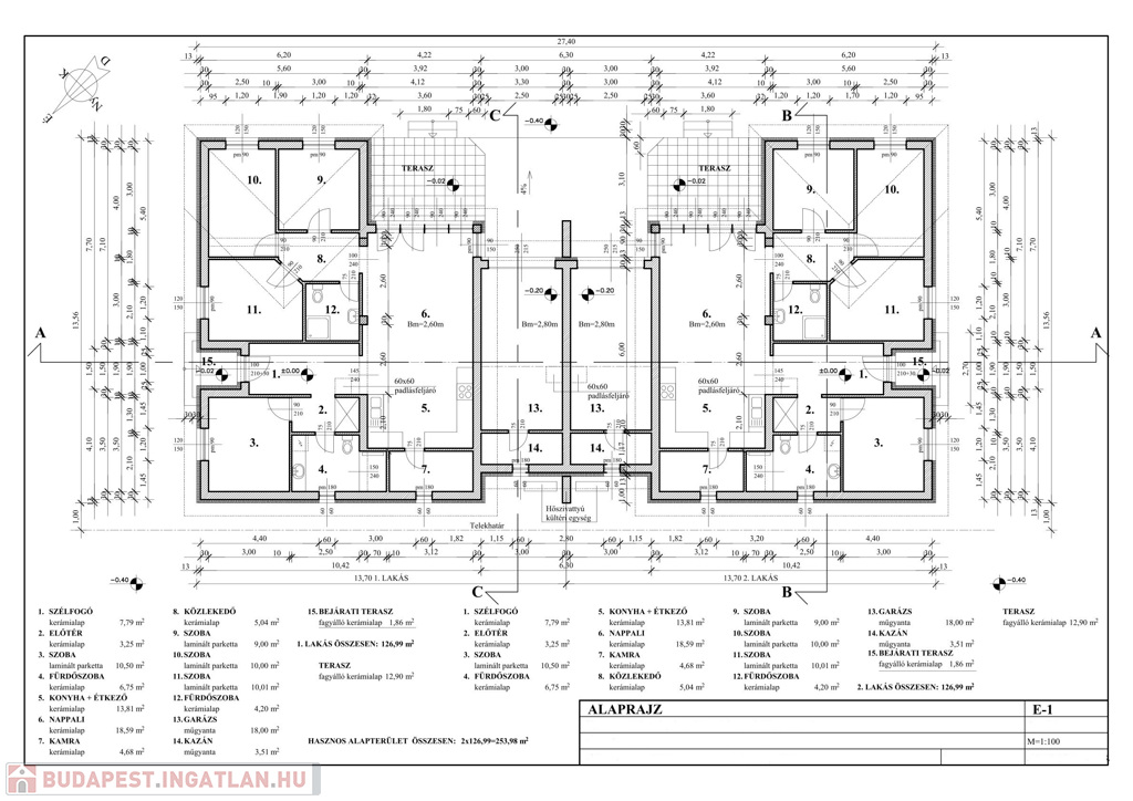
127m2 360 m2 telekrésszel.
2-es lakás ára: 108 000 000 Ft
127m2 2 300 m2 telekrésszel.
Mindkét lakás tartalmaz 4 szobát, amerikai konyhás nappalit, 2 fürdőszobát, spejzt, gardróbot, garázst. Akár 3 gyermekes család kényelmes lakhatását is biztosítja. Az épületek minőségi kivitelezéssel, prémium kategóriájú anyagok felhasználásával készülnek. Az ingatlanok 30 cm-es Porotherm téglából épülnek, 15 cm-es grafitos dryvit szigeteléssel, műanyag 7 légkamrás nyílászárókkal, valamint a tető Bramac beton cserépfedéssel kerül kialakításra. A fűtésről, hűtésről és a meleg vízellátásról, energiatakarékos, hőszivattyús fűtési rendszer (padlófűtés), illetve 3,6kW hűtő fűtő klíma gondoskodik.
Riasztó és napelem előkészítéssel, illetve elektromos garázskapuval. A ház jelenleg építés alatt, befejezése a vevő igényeit figyelembe véve történik. A burkolatokat, szanitereket, belső nyílászárókat, a tulajdonos választhatja a megállapodás szerinti értékhatárig. A vételár kulcsrakész állapotra vonatkozik, amely a konyhabútort nem tartalmazza.
Várom megtisztelő érdeklődését: Keresztes Zoltán 06-30-674-8605

Családi ház részletei

Ár: 99 000 000 Ft
Méret: 127 négyzetméter
Azonosító: 11593153
Ingatlan állapota: Kérdezzen rá a hirdetőtől »
Jelleg: családi ház
Építőanyag: Kérdezzen rá a hirdetőtől »
Egész szobák: 5

Térkép


Így keressen budapesti ingatlant négy egyszerű lépésben. Csupán 2 perc, kötelezettségek nélkül!

Szűkítse a budapesti ingatlanok
listáját
Válassza ki a megfelelő
budapesti ingatlant
Írjon a hirdetőnek
Várjon a visszahívásra