Eladó családi ház Ráckeve 160 000 000 Ft

Leírás

Ráckevén csendes utcában 2 lakásos ikerház, mindkét fele, 90 % készültségben eladó. 33% helyben előállított villamosenergia napelem rendszerrel. Minden támogatás igénybe vehető!

Ráckevén: Budapestől 40-km távolságra a Hév végállomástól és a busz végállomástól séta távolságra. Tesco, Aqualand és a kis-Dunapart is séta távolságra. A nagy-duna 5 km távolságra. Az MO -ás 30 km, a Savoyai kastély mögött. Magyarországon egyedülálló csónakos-piac 1,5 km.
Elhelyezkedés: Ráckeve északi részén az új fejlesztési övezetben.” nem újtelepi”
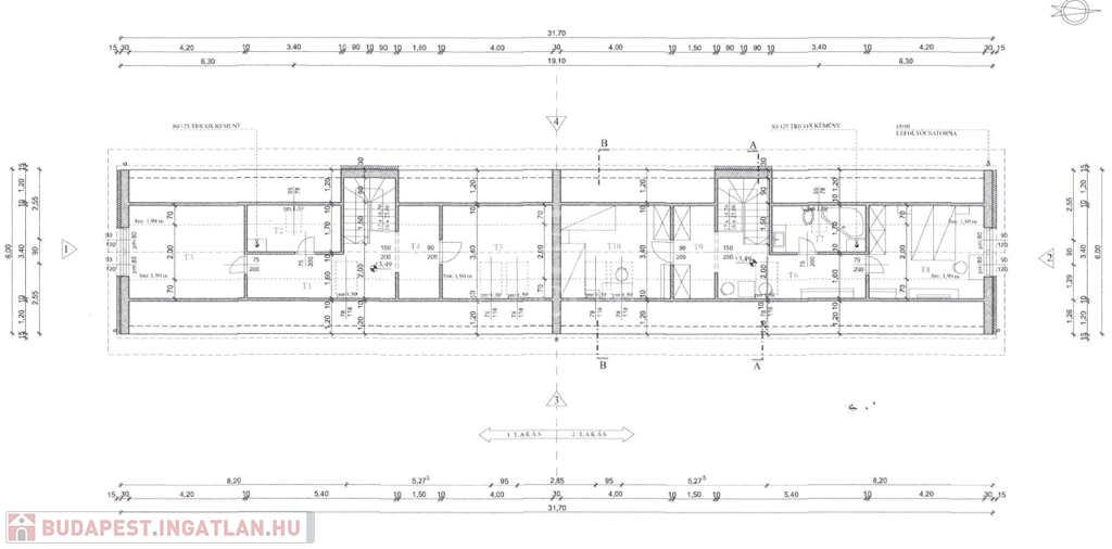
A lakás 90% készültségi állapotban van. 102 nm + 102nm nettó alapterületű 2 szintes, + kétszer 19 nm fűtött garázzsal. Összesen 242m2. Kétszer 3 szoba amerikai konyha, nappali, fedett terasz, dupla komfort, gardrób. 33% helyben előállított villamosenergia, amiről napelemek gondoskodnak. A locsoláshoz fúrt kút biztosítja a vizet. Klíma kiállások előkészítve. Riasztórendszer kiépítve. Az konyhabútor elkészítéséhez szakembert tudunk biztosítani!
A lakások 1313 nm körülkerített telken találhatók. A ház:2024-es építési szabványnak megfelelően épült.
Rövid műszaki leírás.
C-12-16/kk beton sávalapozás, 30-as porotherm tégla a főfal 10-es porotherm a válaszfal, a födém vasbeton e-gerenda szerkezettel a héjazat leier betont cserép az eresz horganyzott bádog. Ablakok műanyag thermo 3 rétegű üveggel és gáz töltéssel, Antracit alu redőnyök és szúnyoghálók motoros mozgatással. Garázskapu antracit motoros mozgatással. Aljzatok 12 cm drivyt, homlokzat 15 cm drivyt, tető 25 cm kőzet gyapottal készült. A járda autó behajtó viacolor burkolattal rendelkezik 200 nm-en. A kapu elektromos mozgatású. A fűtés és melegvíz ellátásáról mindkét lakásban külön-külön kombi cirkó kondenzációs gázkazán gondoskodik. A villamos energiaszámla csökkentéséről napelemek gondoskodnak.

Az ingatlanok eladási árai!
1. lakás 1. opció 82 M Ft 650 m2 -es telekkel
1. lakás 2. opció 76 M Ft 50 m2 -es előkertel
2. lakás 1. opció 82 M Ft 650 m2 -es telekkel
2. lakás 2. opció 88 M Ft 1300 m2 -es telekkel

FINANSZÍROZÁS:
Nálunk mindent egy helyen intézhet:
- hivatalos ingatlanközvetítés;
- szakszerű jogi képviselet;
- profi CSOK-PLUSZ, és hitelügyintézés: 16 Bank, több mint 100 konstrukció;

Kérésére, műszaki leírást, nagy-felbontású alaprajzot küldök!

VÁROM MEGTISZTELŐ HÍVÁSÁT!

A részletes adatvédelmi tájékoztató folyamatosan elérhető a www.gdn-ingatlan.hu/adatvedelem oldalon.

Családi ház részletei

Ár: 160 000 000 Ft
Méret: 256 négyzetméter
Azonosító: 11595956
Irodai azonosító: 392229
Cím: Arany János u.
Telek: 1236 négyzetméter
Ingatlan állapota: Kitűnő
Jelleg: ikerház
Építőanyag: Tégla
Fűtés jellege: Cirkó
Fűtés módja: Gáz
Komfort fokozat: Dupla komfort
Kor: Új építésű
Szintek száma: 1 szint
Egész szobák: 6
Fél szobák: 2

Egyéb jellemzők

  • Csatorna
  • Garázs
  • Pince
  • Terasz

Térkép


Így keressen budapesti ingatlant négy egyszerű lépésben. Csupán 2 perc, kötelezettségek nélkül!

Szűkítse a budapesti ingatlanok
listáját
Válassza ki a megfelelő
budapesti ingatlant
Írjon a hirdetőnek
Várjon a visszahívásra