Eladó családi ház Pusztaföldvár 65 890 000 Ft

Leírás

Eladó egy különleges, autentikus tanya Pusztaföldvár külterületén, alig 8 km-re Orosházától. Az ingatlan két épületből áll: egy felújított, korhű vertfalú parasztházból, valamint egy kétszintes, 2019-ben épült téglafalazatú épületből, amely kifejezetten rendezvények és vendéglátás céljára lett kialakítva.
A parasztház teljes mértékben lakható, konyhával, fürdőszobával, WC-vel, egy nagy és egy kisebb szobával rendelkezik. A fűtés cserépkályhával és klímával biztosított, így egész évben komfortos. A meleg vizet villanybojler és napkollektor biztosítja.
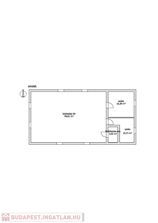
A 2019-ben épült főépület alsó szintjén rendezvénytér, konyha, mosdó és tároló kapott helyet. Az emeleten két szoba, közösségi tér és további mosdó szolgálja a vendégek kényelmét.
A tágas terasz az épület teljes hosszában végigfut, kilátással a fiatal erdőre és az udvarra.
A birtokon egy kisebb tó is található, mely ideális horgászatra, haltartásra.

Az épületek előtt több mint 10 autó részére kialakított parkoló, valamint egy fedett beálló található – rendezvényekhez tökéletes háttérinfrastruktúra. Stabil, egész évben járható megközelítés, még esős időben is!

Hasznosítási lehetőségek:
- Rendezvényhelyszín – esküvők, családi összejövetelek, csapatépítők, tematikus programok (pl. kézműves napok, falusi disznótor)
- Turisztikai szálláshely / vendégház – falusi turizmus, természetközeli pihenés, horgászturizmus.
- Kreatív műhely vagy alkotótábor – festők, fotósok, írók számára tökéletes, inspiráló környezet.
- Oktatási vagy élményalapú programok helyszíne – hagyományőrzés, tanyasi élet bemutatása is megvalósítható.
- Saját otthonként is kiváló választás, ha egy nyugodt vidéki életre vágyik! Az ingatlanhoz tartozó szántóterület és a saját tó kiváló alapot adnak akár önellátó gazdálkodáshoz, növénytermesztéshez, állattartáshoz.

Ha egy különleges helyet keres, ahol egyszerre lehet otthon és inspiráló tér, akkor ne hagyja ki ezt a lehetőséget! Hívjon bizalommal!
(További képekért és információkért kérem hívjon!)

Családi ház részletei

Ár: 65 890 000 Ft
Méret: 260 négyzetméter
Azonosító: 11406635
Irodai azonosító: 233720
Telek: 11577 négyzetméter
Ingatlan állapota: Kitűnő
Jelleg: tanya
Építőanyag: Tégla
Fűtés jellege: Cserépkályha
Egész szobák: 3
Fél szobák: 1

Egyéb jellemzők

  • Beépíthető tetőtér
  • Csatorna
  • Garázs
  • Melléképület
  • Pince
  • Terasz

Így keressen budapesti ingatlant négy egyszerű lépésben. Csupán 2 perc, kötelezettségek nélkül!

Szűkítse a budapesti ingatlanok
listáját
Válassza ki a megfelelő
budapesti ingatlant
Írjon a hirdetőnek
Várjon a visszahívásra