Eladó családi ház Piliscsaba 48 500 000 Ft

Leírás

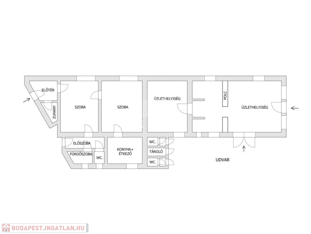
Lakás + üzlethelyiség Piliscsaba városközpont közelében.

336 nm-es telken felújítás alatt álló br. 120 nm-es lakás és üzlethelyiség.

A lakás ~ 55 nm-es, helyiségei: 2 szoba, konyha, 2 fürdőszoba + egy külön wc, közlekedő. A lakás két bejáratos.

Az üzlethelyiség korábban vendéglátóhelyként üzemelt, egy konyhából és vendégtérből + két mosdó található benne. A két helyiség akár teljesen összenyitható, ideális lehet lehet nagy teret igénylő tevékenységekre, mint pl. raktározás, sport, bemutató stb.

Az udvaron grillező és épített kemence található.

Mindkét ingatlanrész saját fő illetve almérővel rendelkezik.

Övezeti besorolása VT-1 / településközpont vegyes építési övezet, vagyis lakó, -kereskedelmi, -szolgáltató, szórakoztató rendeltetési egység létesíthető rajta.

A telekre teherautóval is be lehet állni alkalmas. Telephely és raktározás céljára kifejezetten alkalmas.

Az eladási ár a felújítás függvényében változhat.


Amennyiben a vásárláshoz hitelt is igénybe szeretne venni, akkor
BANKFÜGGETLEN hitelcentrumunk minden elérhető bank és hitelintézet ajánlatát versenyezteti az Ön kedvéért, ráadásul díjmentesen.

Családi ház részletei

Ár: 48 500 000 Ft
Méret: 110 négyzetméter
Azonosító: 11566416
Irodai azonosító: 387486
Cím: Piliscsaba
Telek: 336 négyzetméter
Ingatlan állapota: Felújítandó
Jelleg: családi ház
Építőanyag: Tégla
Fűtés jellege: Konvektoros
Fűtés módja: Gáz
Komfort fokozat: Komfort
Kor: 50 évesnél régebbi
Szintek száma: Földszintes
Egész szobák: 3

Egyéb jellemzők

  • Csatorna
  • Garázs
  • Pince
  • Terasz

Térkép


Így keressen budapesti ingatlant négy egyszerű lépésben. Csupán 2 perc, kötelezettségek nélkül!

Szűkítse a budapesti ingatlanok
listáját
Válassza ki a megfelelő
budapesti ingatlant
Írjon a hirdetőnek
Várjon a visszahívásra