Eladó családi ház Pilisborosjenő 295 000 000 Ft

Leírás

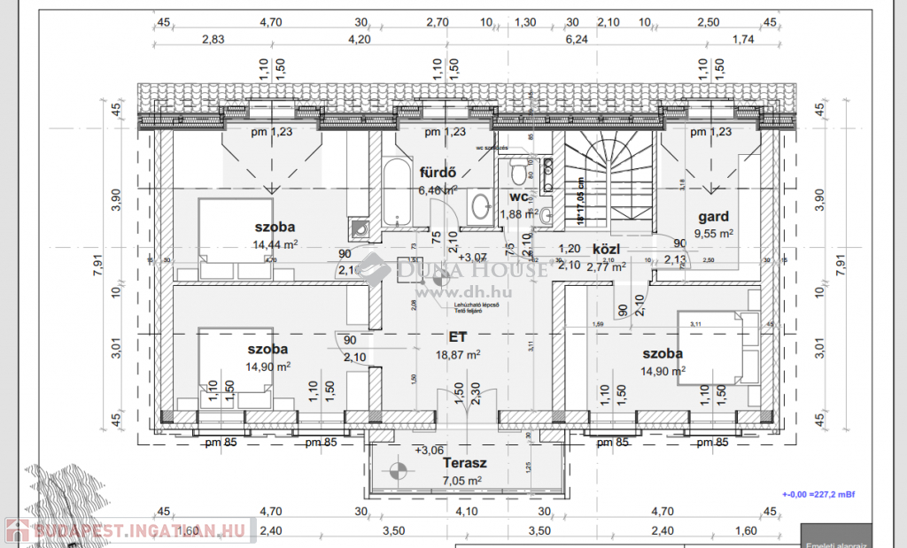
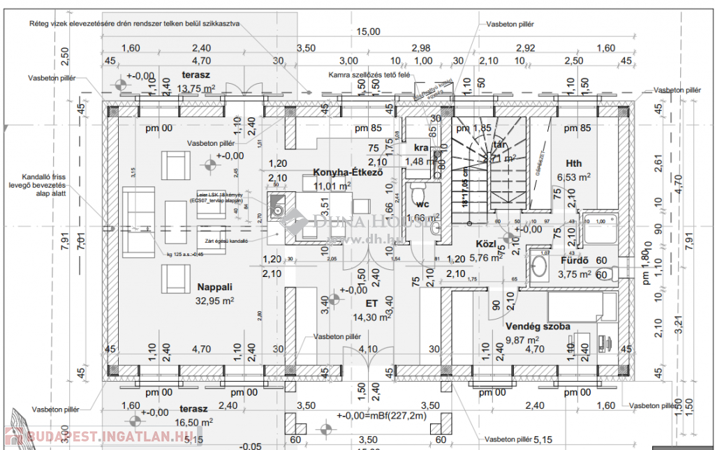
Pilisborosjenőn eladásra kínálunk egy örökpanorámás, magas műszaki tartalommal bíró 200nm-es kúria jellegű családi házat, amely egy 800nm-es telken helyezkedik el.

A tágas, minden igényt kielégítő otthonhoz egy kétállásos garázs is tartozik. Kertje angolkert stílust képvisel, ahol megtalálható rengeteg csodás növény mint pl: kínai selyemmirtusz, hársfa, mandulafenyő és sok más évelő növény. Több, mint 100 db örökzöld sövény növény is ültetésre került, melyek még inkább biztosítják a nyugalmat és intimitást.

A ház műszaki jellemzői:
- 30-as Porotherm klímaokostégla falazat plusz 15cm külső szigetelés
- korszerű 3 rétegű Hoffstädter műanyag nyílászárók
- okosvezérlővel szerelt Hunter öntözőrendszer
- padlófűtés és mennyezet hűtés van kiépítve hőszivattyús rendszerrel
- az emeleten a padlástérben 30-40 cm-es hőszigetelés került beépítésre
- riasztó kábelezés is kiépítésre került
- napelem rendszernek a földkábelezés elkészítve kiállva, Htarifa igényelhető
- az összes esővízcsatorna be van kötve egy földalatti 5,2m3-es gyűjtőtartályba, melyből Pedrollo házi vízmű gondoskodik az öntözésről
- motorizált garázskapu
- víz-, villanyszerelés elkészült

Egyéb jellemzői:
- egyedi gyártású spaletták Roto vasalattal, ragasztott fából Tikkurila minőségi festékrendszerrel, fényezéses eljárással festve
- a vízgyűjtő üst megtalálható a Gödöllői Grassalkovich (Sisi-kastély) esővízcsatornáin is
- a tetőben elhelyezett bádog díszablakok neves díszműbádogos mester kézimunkái, névjegyével ellátv
- a házon és a garázson lévő összes szarufa kézzel faragott
- lenyűgöző panoráma mellett álomszép naplementék figyelhetők meg
-egyedi készítésű kovácsoltvas mindenütt

Az újonnan épülő ingatlan 80%-os készültséggel kerül értékesítésre, de igény szerint befejezi a kivitelező. Minőségi anyagok felhasználása mellett a kifinomult részletek megvalósítása is végig szem előtt volt a ház építésénél.

Ha Budapest közelében egy rendkívül kedvező fenntartási költségű házat keres, ez biztosan elnyeri a tetszését.

Ha felkeltette érdeklődését, keressen bizalommal!

295000000 Ft

Referencia szám: HZ084304

Családi ház részletei

Ár: 295 000 000 Ft
Méret: 200 négyzetméter
Azonosító: 11479034
Irodai azonosító: HZ084304-4844915
Cím: Pilisborosjenői eladó 200 nm-es ház
Telek: 800 négyzetméter
Ingatlan állapota: Átlagos
Jelleg: családi ház
Építőanyag: Tégla
Fűtés jellege: Villany
Fűtés módja: Hőszivattyú
Komfort fokozat: Luxus komfort
Kor: Új építésű
Szintek száma: Földszintes
Egész szobák: 5

Egyéb jellemzők

  • Garázs

Térkép


Így keressen budapesti ingatlant négy egyszerű lépésben. Csupán 2 perc, kötelezettségek nélkül!

Szűkítse a budapesti ingatlanok
listáját
Válassza ki a megfelelő
budapesti ingatlant
Írjon a hirdetőnek
Várjon a visszahívásra