Eladó családi ház Pilis 56 640 000 Ft

Leírás

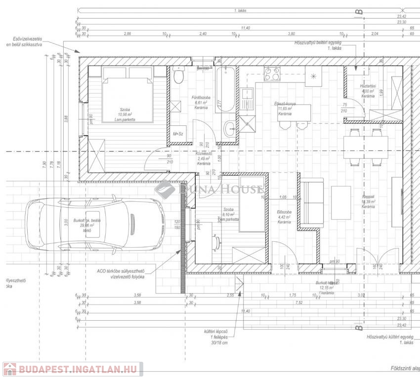
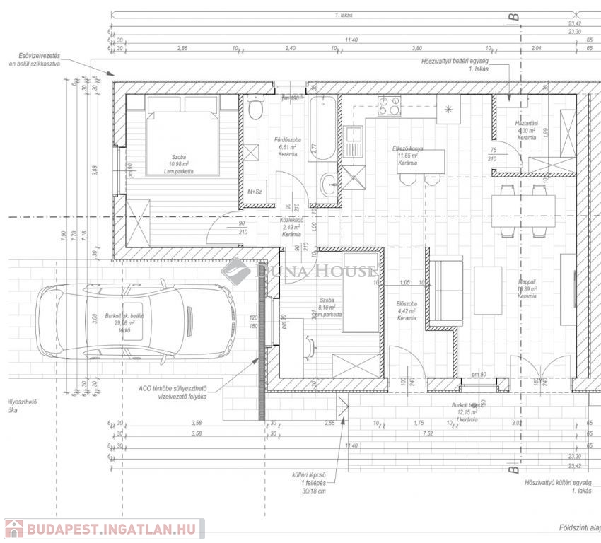
ELADÓ ÚJ ÉPÍTÉSŰ 3 szobás 67, m2-es IKERHÁZ Pilisen, VASÚTÁLLOMÁSHOZ KÖZEL KIVÁLÓ UTCÁBAN!

OTTHON START HITEL IGÉNYELHETŐ!

PILIS LEGJOBB KIVITELEZŐJÉTŐL, ÁLMODD MEG TE IS SAJÁT OTTHONOD!

Alapterület 67 m2
Terasz:12,15 m2
Telek területe: 412 m2

Választható hideg és meleg burkolatok 700.000 Ft-ig teljes rétegrendben. Dekorfóliás ajtók 60.000 Ft-ig választhatók.
Szaniterek: 250.000 Ft-ig

Kialakítása: 2 szoba, tágas amerikai nappali konyha, háztartási helyiség, előtér, közlekedő, fürdő+wc, nyitott terasz.

Több referenciamunka megtekinthető, minőségi munkák, több éves közös együttműködés.
Teljes műszaki tartalom a helyszínen megtekinthető.

EXTRA:
-Barna színű betoncserép fedés, barna színű alumínium ereszcsatorna.
-7x3 as térkő kocsibeálló( füst antracit) az árban
-utcafronti kerítés és az elektromos kapu az árban

Fűtést és a meleg vizet: 8,5 kw-os 1 fázisú hőszivattyú adja, padlófűtés mindenhol. 3,5 kw-os inverteres klíma az árban.

Műszaki paraméterek:
30 cm-es ytong teherhordó fal, 10 cm-es viablokk válaszfalak, 6 cm Eps homlokzati szigetelés.
3 réteg műanyag fehér nyílászárók, több ponton záródó bejárati ajtó.

Hőszigetelés:
A padlóban 6 cm lépésálló EPS szigetelés készül a csatolt rétegrendek szerint. A pórusbeton falazat külső oldalán 6 cm EPS hőszigetelés kerül elhelyezésre, a vasbeton koszorúk előtt további 10 cm kiegészítő hőszigetelés elhelyezése szükséges, 30 cm fújt hőszigetelés a mennyezetre.

Homlokzatképzés:
Az épület homlokzati felületképzése törtfehér színű kapart nemesvakolat. A lábazat sötétbarna színű lábazati festék. Az épülettömeg megjelenése illeszkedik az utcaképbe, a színek és megjelenés megválasztásakor figyelembe lettek véve a hatályos helyi településképi rendelet előírásai.

Budapest távolsága M4-es autópályán 25 perc, Vonattal 40 perc.

Várható Átadás: 2026.év vége

CSOK plusz kedvezményes hitel igénybe vehető.Amennyiben felkeltettem érdeklődését, várom megtisztelő hívását.
Ügyvédi közreműködés és hitelügyintézés egy helyen.

Családi ház részletei

Ár: 56 640 000 Ft
Méret: 67 négyzetméter
Azonosító: 11579171
Irodai azonosító: HZ078804-5083225
Telek: 412 négyzetméter
Ingatlan állapota: Épülő
Jelleg: ikerház
Építőanyag: Tégla
Fűtés jellege: Villany
Fűtés módja: Hőszivattyú
Kor: Új építésű
Szintek száma: Földszintes
Egész szobák: 3

Térkép


Így keressen budapesti ingatlant négy egyszerű lépésben. Csupán 2 perc, kötelezettségek nélkül!

Szűkítse a budapesti ingatlanok
listáját
Válassza ki a megfelelő
budapesti ingatlant
Írjon a hirdetőnek
Várjon a visszahívásra