Eladó családi ház Pécel 89 500 000 Ft

Leírás

CSAK NÁLUNK!

Tele LEHETŐSÉGGEL!

Pécelen, a Kelő Lakópark peremén, 665 m² telken kínálunk eladásra egy háromszintes, dupla komfortos önálló családi házat.

A ház fűtött alapterülete 111,93 m² (99,7m² ), bruttó alapterülete 140,24 m².A bruttó alapterület számításakor az emelet 70 %-ban a pince 30%-ban, a terasz és erkély 50%-ban került beszámításra.


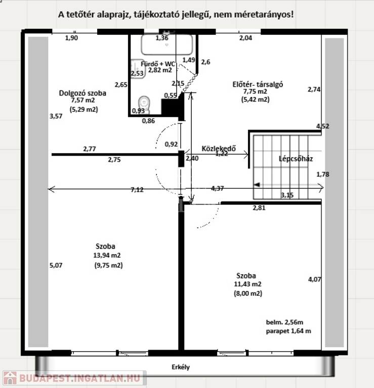
Az ingatlan három plusz két szobás, jól átgondolt elrendezésű.

Az épületet 1984-ben kezdték építeni, és 1986-ban kapta meg a használatbavételi engedélyt.

A falazat szilikát, a tető cserépfedésű, a födém vasbeton gerendás.
A külső nyílászárók hőszigetelt, kétrétegű üvegezésű fa ablakok.

A fűtés gázkazán, radiátoros hőleadással. A melegvizet a földszinten, gázbojler az emeleten villanybojler adja.

A z ingatlant beépített, üvegezett teraszon keresztül jutunk a földszinti lakótérbe, melynek nettó alapterülete 68,42 m².
Itt két szoba, konyha, étkező, kamra, fürdőszoba, közlekedő és lépcsőház található.
Világos, jól szellőző, praktikus elrendezésű tér fogad.

A felső szinten két hálószoba, egy dolgozószoba, egy társalgó és egy fürdőszoba került kialakításra.
A helyiségek tágasak, a nagy ablakoknak köszönhetően világosak.


A pince szint 70,3 m², ahol fűtött, 25 m² garázs, hobby szoba, szárítóhelyiség, valamint kazánház, kamra- tároló, és gázmérő helység kapott helyet.

A ház 3 x 16 amperes áramellátással rendelkezik.

A kert rendezett, parkosított, kellemes környezetet biztosít családosoknak, pihenni vágyóknak vagy akár kétgenerációs használatra is.
A beépített terasz alatt tárolót találunk.


Ez az ingatlan ideális választás azoknak, akik tágas, több szintes családi házat keresnek zöldövezeti környezetben, mégis a főváros közelében.

Az ingatlan PER, TEHER, IGÉNY MENTES!

Jöjjön el nézze meg, szeressen bele, és tegyen ajánlatot!


Közlekedés:
Az új felüljáró átadása óta a gépjárművel való közlekedés kiváló. Pár perc az M0 autóút.

A gyalogos közlekedés: a helyi buszjárat 5 perc séta, ami a vasútállomásra, a városközpontba visz. Érinti az iskolát, óvodát, üzletet. A központban csatlakozik a korszerűsített vasúthoz, ami a Keleti pályaudvarra megy, és a 169 E buszhoz, ami az Örs vezér térre visz ki. Itt felülhet az ingyenes AUCHAN járatra is, amivel Maglódra mehet.

A GDN HitelCentrum, KÖTELEZETTSÉG MENTESEN és DÍJMENTESEN, versenyezteti Önért a bankok hitelajánlatait. Ismerje meg a vissza nem térítendő állami támogatásokat!


• CSOK+,
• babaváró,
• hitel,
• megtakarítás,
• és egyéb banki tranzakcióban segítségére lehetünk!
• Ügyvédi hátteret tudunk biztosítani!


Ha az ingatlannal kapcsolatban bővebb felvilágosításra lenne szüksége, hívjon bizalommal, állok rendelkezésére!

Videó link: https://youtu.be/Z7L-Z13KeiQ

F.M.

Családi ház részletei

Ár: 89 500 000 Ft
Méret: 111 négyzetméter
Azonosító: 11576891
Irodai azonosító: 389185
Cím: Pécel, Kelő lakópark peremén
Telek: 665 négyzetméter
Ingatlan állapota:
Jelleg: családi ház
Építőanyag: Szilikát
Fűtés jellege: Héra
Fűtés módja: Gáz
Komfort fokozat: Dupla komfort
Kor: 21-50 éves
Szintek száma: 2 szint
Egész szobák: 3
Fél szobák: 2

Egyéb jellemzők

  • Csatorna
  • Garázs
  • Pince
  • Terasz

Térkép


Így keressen budapesti ingatlant négy egyszerű lépésben. Csupán 2 perc, kötelezettségek nélkül!

Szűkítse a budapesti ingatlanok
listáját
Válassza ki a megfelelő
budapesti ingatlant
Írjon a hirdetőnek
Várjon a visszahívásra