Eladó családi ház Páty 109 000 000 Ft

Leírás

Elvágyódsz a város zajából, de nem akarsz lemondani a stílusról és a kényelemről? Megtaláltuk a tökéletes ingatlant Páty legkedveltebb, csendes, aszfaltos utcájában! Ez a ház nem csak egy ingatlan, ez egy kompromisszum mentes álomotthon!

A házról, ami tökéletes:

Minden új, minden kész: az épület teljeskörű műszaki és esztétikai felújításon esett át. Szigetelt falak, modern belső - ide tényleg csak költözni kell!
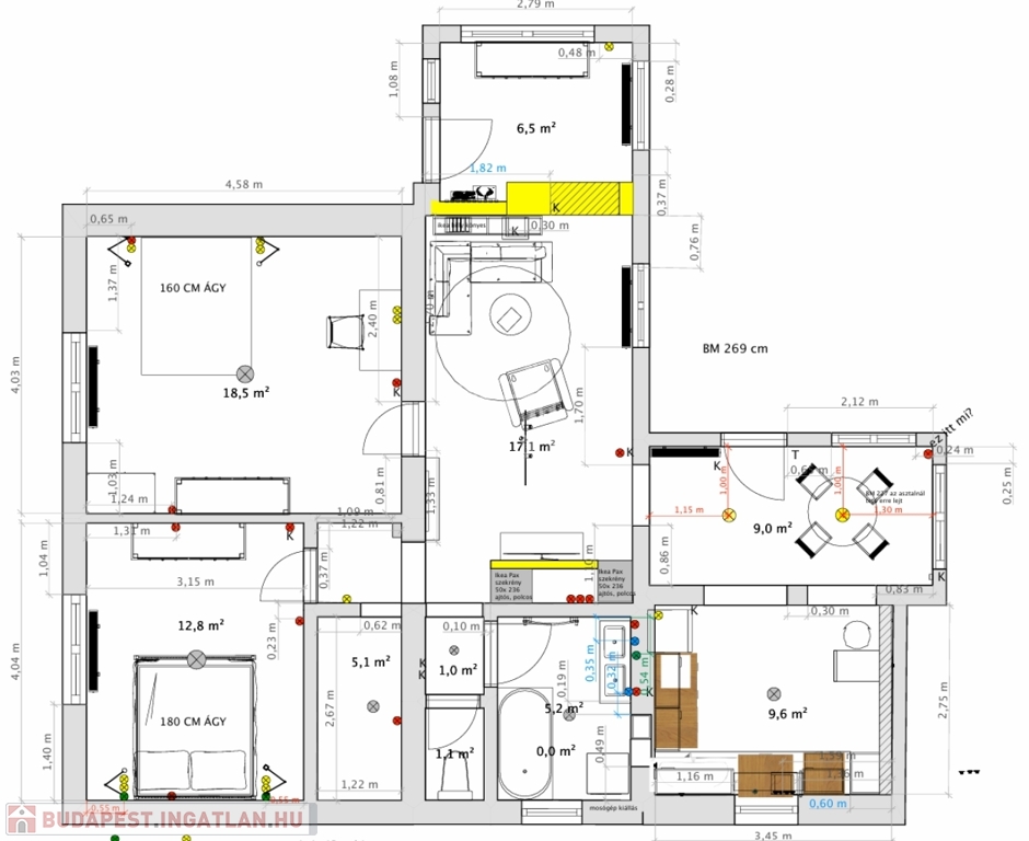
Optimális térérzet: bruttó 109 nm, ahol minden négyzetméter ki van használva.
Elosztás: világos amerikai konyhás nappali + 2 teljes értékű, különnyíló hálószoba, fürdőszoba, külön WC, hangulatos, fedett, déli fekvésű terasz, borospince és gépészeti helyiség.

Rezsibarát és komfortos:

Fűtés: modern kondenzációs kazán radiátoros hőleadással – hatékony és takarékos.
Hűtés: klíma gondoskodik a kellemes hőmérsékletről a nyári kánikulában is.
Nyílászárók: műanyag, redőnnyel és szúnyoghálóval ellátva.
Konyha: minőségi, esztétikus bútorokkal, gépesítve.

Kert és kikapcsolódás:

1100 nm-es telek: itt elfér a kutya, a gyerekek játszótere, a veteményes, sőt még egy medence is!
Fedett terasz: a reggeli kávéd vagy az esti grillpartik tökéletes helyszíne.
Bónusz: saját, hangulatos borospince – tartsd itt a környék legjobb borait!

Kitűnő lokáció:

Páty szíve, ahol a nyugalom nem jelent elszigeteltséget.
Bölcsőde, óvoda, iskola percek alatt elérhető.
Bevásárlási lehetőség, posta, orvosi rendelő, buszmegálló a közelben.
Szuper szomszédság, biztonságos és családias környék.
Kitűnő közlekedés, gyorsan és kényelmesen elérhető Budapest.

Ez a ház nem fog sokáig várni a piacon! Ha egy olyan otthont keresel, ami fenntartható, stílusos és hatalmas kertje van, gyere és nézd meg élőben!

Családi ház részletei

Ár: 109 000 000 Ft
Méret: 93 négyzetméter
Azonosító: 11594903
Irodai azonosító: 392033
Cím: Petőfi utca
Telek: 1100 négyzetméter
Ingatlan állapota: Felújított
Jelleg: családi ház
Építőanyag: Tégla
Fűtés jellege: Cirkó
Fűtés módja: Gáz
Komfort fokozat: Összkomfort
Kor: 21-50 éves
Szintek száma: Földszintes
Egész szobák: 3

Egyéb jellemzők

  • Csatorna
  • Garázs
  • Pince
  • Terasz

Térkép


Így keressen budapesti ingatlant négy egyszerű lépésben. Csupán 2 perc, kötelezettségek nélkül!

Szűkítse a budapesti ingatlanok
listáját
Válassza ki a megfelelő
budapesti ingatlant
Írjon a hirdetőnek
Várjon a visszahívásra