Eladó családi ház Pálmonostora 17 400 000 Ft

Leírás

Otthonok és megoldások!

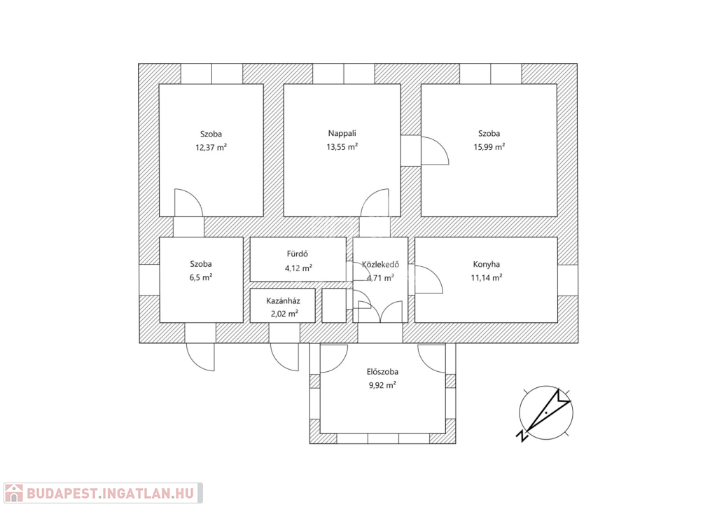
Pálmonostora közelében, az 5-ös főút mentén, eladó egy összesen 4106 m²-es telken elhelyezkedő, felújításra szoruló 82 m²-es, sokoldalúan hasznosítható ingatlan!

Az ingatlan fő jellemzői:

-82 m²-es főépület

-4 különálló szoba, tágas elrendezés

-Vegyes tüzelésű kazán radiátoros fűtéssel

-Beépíthető tetőtér – bővítési lehetőség

Teljes felújítást igényel, viszont kiváló alapot biztosít egyedi elképzelésekhez.

Melléképületek és gazdasági lehetőségek:

-12 m²-es alápincézett nyári konyha

-36 m²-es kétállásos garázs

-29 m²-es szerelőaknás nyitott szín – ideális autószerelésre

-Több tárolóhelyiség és ól – akár állattartásra is alkalmas

Közművek:

-3x20A ipari áram – ideális műhelyhez vagy telephelyhez

-Fúrt kút, emésztő – költséghatékony üzemeltetés

Kiváló megközelítés, kiváló lehetőség!

Az 5-ös főút közelsége miatt kiváló lokáció vállalkozások számára:

-Autószerelő műhely, autókereskedés

-Raktározás, logisztikai telephely

Vagy akár lakó + vállalkozás kombinációja is könnyedén kialakítható.

Ha olyan ingatlant keresel, ahol a vállalkozás és lakhatás egy helyen megvalósítható, és nem riadsz vissza a felújítástól, ez az ingatlan igazi aranybánya lehet számodra!

Ne hagyd ki, kérj időpontot a megtekintéshez még ma!

Családi ház részletei

Ár: 17 400 000 Ft
Méret: 82 négyzetméter
Azonosító: 11567726
Irodai azonosító: 387665
Cím: 5-ös főút mellett
Telek: 4106 négyzetméter
Ingatlan állapota: Felújítandó
Jelleg: családi ház
Építőanyag: Kérdezzen rá a hirdetőtől »
Komfort fokozat: Összkomfort
Kor: 50 évesnél régebbi
Szintek száma: Földszintes
Egész szobák: 4

Egyéb jellemzők

  • Csatorna
  • Garázs
  • Pince
  • Terasz

Térkép


Így keressen budapesti ingatlant négy egyszerű lépésben. Csupán 2 perc, kötelezettségek nélkül!

Szűkítse a budapesti ingatlanok
listáját
Válassza ki a megfelelő
budapesti ingatlant
Írjon a hirdetőnek
Várjon a visszahívásra