Eladó családi ház Pákozd 298 000 000 Ft

Leírás

Eladó körpanorámás, háromszintes családi ház Pákozdon, a Velencei-tó szomszédságában!

Vh-004651 Pákozdon, a Velencei-tó közvetlen közelében, a természet ölelésében, csendes, elszigetelt környezetben elhelyezkedő, összesen 334 m² alapterületű, háromszintes, körpanorámás családi ház 1154 m²-es saroktelken eladó. Az ingatlan 2 nappalival, 5 hálószobával és igényes belső kialakítással rendelkezik, mely a komfort és esztétikum harmóniáját kínálja.

Pákozd a Velencei-tó északi partján, a Velencei-hegység délkeleti lábánál található, festői szépségű település, amely kedvező földrajzi elhelyezkedésének köszönhetően könnyen elérhető az ország bármely pontjáról.
Budapest mindössze 49 km, Székesfehérvár 10 km, a Balaton (Siófok) pedig 50 km távolságra található, az M7-es autópályán keresztül gyorsan megközelíthetően.

Az impozáns családi ház a főútról könnyen megközelíthető, belterületi övezetben helyezkedik el. A közelben található buszmegálló, valamint minden fontos kereskedelmi és közintézményi szolgáltatás (óvoda, iskola, háziorvosi rendelő, fogorvos, posta, gyógyszertár, játszótér, élelmiszerbolt, hentes, gazdabolt stb.) 5–10 perc távolságon belül elérhető.
____________________

Műszaki jellemzők és felszereltség

A ház 2006-ban épült, Porotherm 38-as teherhordó falazattal és Porotherm 10-es válaszfalakkal, korszerű vízszigetelési rendszerrel, monolit vasbeton födémmel, kőzetgyapottal hőszigetelt tetőszerkezettel, amelyet Tondach kerámia cserépfedés borít.

A hőszigetelt, 3 rétegű üvegezésű nyílászárók, a magas minőségű hideg- és melegburkolatok, a dizájnos falpanelek, valamint a tetőtéri tölgy lazúros lambériaburkolat a természetes eleganciát és tartósságot képviselik.
Az egyedi beépített bútorok, a galériás belső térkialakítás, valamint a gondosan megtervezett belsőépítészeti elemek az otthonosság és funkcionalitás tökéletes összhangját biztosítják.

A ház komplex riasztórendszerrel, 3 fázisú ipari árammal (400V) és inverteres klímaberendezésekkel felszerelt.

A fűtést új, korszerű cirkó gázkazán biztosítja, radiátoros és padlófűtéses hőleadással, míg a nappaliban található zárt tűzterű kandalló hangulatos, kiegészítő fűtési megoldást kínál a téli hónapokban.
A melegvíz-ellátást egy új Ariston villanybojler szolgáltatja.

A rezsiköltségek rendkívül kedvezőek, hiszen a ház energiaellátását egy 10 kW teljesítményű, szaldós elszámolású napelemes rendszer is támogatja, jelentősen csökkentve az üzemeltetési költségeket és a környezeti terhelést.
____________________

Elosztás és belső terek
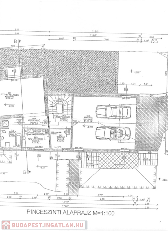
A ház teljes fűtött hasznos alapterülete 322 m², az alaprajz a képek között megtekinthető.

Pinceszint (123,5 m²):
A pinceszinten kétállásos, elektromos kapuval ellátott garázs, gardrób helyiség, kazánház, mosókonyha zuhanyzós fürdővel, valamint egy tágas fitneszterem került kialakításra.

Földszint (121 m²):
A földszintre kényelmes lépcsősoron keresztül juthatunk fel. Itt található egy tágas amerikai konyhás nappali-étkező, kamra, vendég-WC, előszoba, közlekedő, gardrób, káddal felszerelt fürdőszoba, valamint három különnyíló hálószoba.
Az étkezőből közvetlen kijárat nyílik a teraszra, és a legtöbb helyiség teraszkapcsolattal rendelkezik.

Tetőtér (63,7 m² + 22 m² erkély):
A tetőtérben egy tágas nappali, két hálószoba, gardrób és fürdőszoba kapott helyet. A szinthez kapcsolódik egy részben zárt, 22 m²-es panorámás erkély, ahonnan lenyűgöző kilátás nyílik a környező tájra és a Velencei-tó irányába.
____________________

Telek és külső tér

A 1154 m²-es, sarokelhelyezkedésű telek teljes egészében körbekerített, gondosan parkosított és rendezett.
A kert nagy része térkövezett, a zöldfelületek örökzöldekkel és dísznövényekkel beültetettek, valamint automata öntözőrendszer segíti a fenntartást.

A hátsó udvarban napos fekvésű medence és kerti zuhany található, ami tökéletes kikapcsolódási lehetőséget kínál a nyári hónapokban.
A gépkocsibeállás térkővel burkolt felületen és a garázsból közvetlenül is megoldott.
____________________

Ár és egyéb információk

Eladási irányár: 298 millió Ft / kb. 770 000 EUR (az aktuális árfolyamtól függően)

A vásárláshoz igénybe vehetők az aktuális családtámogatási konstrukciók: Otthon Start (fix 3%), CSOK, Babaváró, jelzáloghitel és egyéb otthonteremtési támogatások.

Irodánk díjmentes, személyre szabott hitelügyintézést biztosít, továbbá segítünk az adásvételi szerződés ügyvédi lebonyolításában, valamint energetikai tanúsítvány és értékbecslés elkészítésében is.

Családi ház részletei

Ár: 298 000 000 Ft
Méret: 334 négyzetméter
Azonosító: 11576859
Irodai azonosító: 389219
Cím: panorámás családi ház
Telek: 1154 négyzetméter
Ingatlan állapota: Kitűnő
Jelleg: családi ház
Építőanyag: Tégla
Fűtés jellege: Cirkó
Fűtés módja: Gáz
Komfort fokozat: Luxus komfort
Kor: 11-20 éves
Szintek száma: 2 szint
Egész szobák: 7
Fél szobák: 2

Egyéb jellemzők

  • Csatorna
  • Garázs
  • Pince
  • Terasz

Térkép


Így keressen budapesti ingatlant négy egyszerű lépésben. Csupán 2 perc, kötelezettségek nélkül!

Szűkítse a budapesti ingatlanok
listáját
Válassza ki a megfelelő
budapesti ingatlant
Írjon a hirdetőnek
Várjon a visszahívásra