Eladó családi ház Ordacsehi 49 000 000 Ft

Leírás

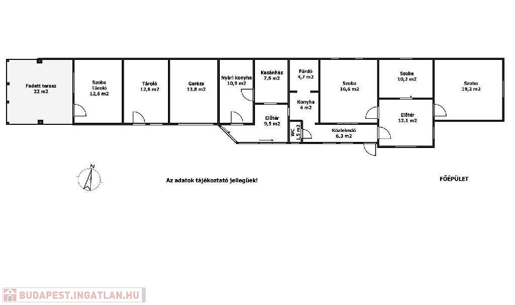
Balaton déli part környékén, Ordacsehin, 102 m2-es családi ház eladó. Az ingatlan a település Fő utcáján helyezkedik el, közel a központhoz. A lakóház részleges felújításon esett át az elmúlt időszakban, homlokzati hőszigetelés készült, nyílászáró csere valósult meg, és a tetőhéjazat is felújításra került korábban. A telek hosszanti elrendezéséből adódóan a régi tornácos ház több lépcsőben melléképületekkel, tárolókkal, garázzsal került bővítésre. Az épület fűtése, melegvíz ellátása megújuló rendszerekkel, tetőre szerelt napkollektorokról biztosított, a fűtési energia előállítására gázkazán és vegyes tüzelésű kazán is kiépítésre került. A régi tornác, mint belső közlekedőhöz kapcsolódnak a hálók, a konyha és lakóelőtér. Külön melléképületben műhely, fatároló, géptároló és pince kapott helyet. A 2317 m2-es telken belül fúrt kút létesült a kert műveléshez, fenntartáshoz. A hátsó kertben gyümölcsös található további telepítési lehetőséggel. A lakóépület végében fedett nyitott terasz kertkapcsolattal épült. A település az M7 autópályától 1000 m-re, autóval 2 percre, a Balaton-parttól 4,5 km-re autóval 6 percre elérhető. Környékbeli nagyobb Balaton-parti városok Balatonboglár és Fonyód. A településen a falus CSOk igénybe vehető. Hitel, CSOK plusz hitel, babaváró hitel ügyintézésben ingyenes segítséget tudunk adni ügyfeleinknek! Otthon Start Hitelprogram Bővebb információért keressen telefonon!

Referencia szám: M294166

Családi ház részletei

Ár: 49 000 000 Ft
Méret: 102 négyzetméter
Azonosító: 11468763
Irodai azonosító: M294166-4826396
Telek: 2317 négyzetméter
Ingatlan állapota: Átlagos
Jelleg: családi ház
Építőanyag: Vegyes
Fűtés jellege: Cirkó
Fűtés módja: Gáz
Komfort fokozat: Összkomfort
Kor: 50 évesnél régebbi
Szintek száma: Földszintes
Egész szobák: 3

Egyéb jellemzők

  • Garázs

Térkép


Így keressen budapesti ingatlant négy egyszerű lépésben. Csupán 2 perc, kötelezettségek nélkül!

Szűkítse a budapesti ingatlanok
listáját
Válassza ki a megfelelő
budapesti ingatlant
Írjon a hirdetőnek
Várjon a visszahívásra