Eladó családi ház Ócsa 99 900 000 Ft

Leírás

Ócsa, méltán kedvelt részén kínálok eladásra kettő darab, Bruttó 159.5 nm-es, nappali + 4 hálószobás, dupla fürdőszobás, teraszos, magas műszaki tartalommal épülő, hőszivattyús, tetőtér beépítéses, új építésű ikerházi lakásokat!!!

A 2025-ös évi elvárásoknak megfelelően épül, levegő-víz hőszivattyúval. A hűtésről kettő db 3.5 KW-os inverteres hűtő-fűtő klíma fog gondoskodni.
Az 1239 nm-es telekre 1 db ikerház kerül megépítésre, minden ingatlanhoz kerítéssel leválasztott telek terület tartozik. Az utcafronti 1. számú ingatlanhoz tartozó telekterület: ~250 nm, terasz 14 nm +4 nm tetőterasz, a hátsóudvar felőli ingatlanhoz: ~1000 nm telekterület, terasz 14 nm + 4 nm tetőterasz . A lakások kizárólag fedett kocsibeállóval kapcsolódnak, ezáltal az ott élők egymás nyugalmát nem zavarják.

A lakások ügyvéd által ellenjegyzett használati megosztással kerülnek értékesítésre.

Árak:
1.lakás: utcafronti ingatlan nettó 142 nm(bruttó 159.5 nm) , ~ 200-250 nm telekterület, levegő-víz hőszivattyú, padlófűtés. Irányár: 99.9 Millió forint.

2.lakás: hátsó udvar felőli nettó 142 nm(bruttó 159.5 nm), ~ 1000 nm telekterület, levegő-víz hőszivattyú, padlófűtés. Irányár: ELKELT!!!

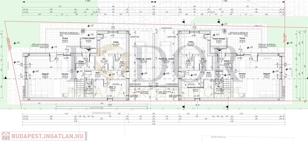
ELRENDEZÉSÜKET LÁSD AZ ALAPRAJZON!

Az építkezés hamarosan elkezdődik, kövesse nyomon új otthona épülését. A hirdetésben szereplő vételár a kulcsrakész állapotra vonatkozik. Burkolatok, szaniterek, beltéri ajtók választhatók.

Megbízható, tőkeerős kivitelező, nem az első építkezése, precíz, minőségi anyagokkal és emberi erőforrással dolgozik. Referencia házak a közelben.

Bővebb információért és részletes tájékoztatásért keressen bizalommal!!!

Műszaki:
• 30-as PHOROTHERM főfal + 10 cm homlokzati szigetelés
• 10 cm válaszfalak
• fafödém, felette 25 cm ásvány vagy üveggyapot szigetelés
• antracit cserép
• vasbeton sávalap
• antracit, műanyag tokos, 3 rétegű thermo üveges külső nyílászárók redőnnyel
• hőszivattyú, padlófűtés
• 2 db 3,5 KW-os inverteres hűtő-fűtő klíma egy a nappaliban nappaliban és egy az emeleti közlekedőben
• hidegburkolat: 8000ft/nm
• melegburkolat: 5000ft/nm


Tulajdonságok:
• amerikai konyhás világos nappali
• nappali + 4 db különnyíló hálószoba
• földszinti szülői háló gardróbbal és privát zuhanyzóval
• 2 db fürdőszoba
• saját privát telekterület
• riasztó rendszer előkészítés
• napelem előkészítés
• utcafronti elektromos kapu az ár részét képezi
• alap kertrendezés füvesítve
• telek előtti közterület térkövezése

AZ ÁR KULCSRAKÉSZ ÁLLAPOTRA VONATKOZIK! ELRENDEZÉSÉT LÁSD AZ ALAPRAJZON!

Infrastruktúrája kiváló, Ócsa Budapest közvetlen agglomerációjában található, mindössze 25 km-re a fővárostól, így autóval és vonattal is gyorsan megközelíthető. A település saját vasútállomással rendelkezik, ahonnan a zónázó vonatokkal 30-35 perc alatt elérhető Budapest belvárosa (Kőbánya-Kispest, Nyugati pályaudvar). A M5-ös autópálya és az M0-s körgyűrű közelsége miatt az autós közlekedés is rendkívül kedvező. A környék csendes, családbarát, kiváló infrastruktúrával: iskola, óvoda, orvosi rendelő, gyógyszertár, boltok, piac és sportolási lehetőségek mind helyben elérhetők.

Várható átadás: 2026.II. negyedév

A leírás kizárólag tájékoztató jellegű

IRODÁNK INGYENES HITEL ÜGYINTÉZÉSSEL, TANÁCSADÁSSAL, SZÁMOS BANK AJÁNLATÁVAL ÉS AZ ÚJ CSOK PLUSZ FOLYÓSÍTÁSÁVAL VÁRJA ÜGYFELEIT!

Családi ház részletei

Ár: 99 900 000 Ft
Méret: 142 négyzetméter
Azonosító: 11568281
Irodai azonosító: 340078
Telek: 250 négyzetméter
Ingatlan állapota: Kitűnő
Jelleg: ikerház
Építőanyag: Tégla
Komfort fokozat: Dupla komfort
Kor: Új építésű
Egész szobák: 5

Egyéb jellemzők

  • Terasz

Így keressen budapesti ingatlant négy egyszerű lépésben. Csupán 2 perc, kötelezettségek nélkül!

Szűkítse a budapesti ingatlanok
listáját
Válassza ki a megfelelő
budapesti ingatlant
Írjon a hirdetőnek
Várjon a visszahívásra