Eladó családi ház Nyírtelek 68 000 000 Ft

Leírás

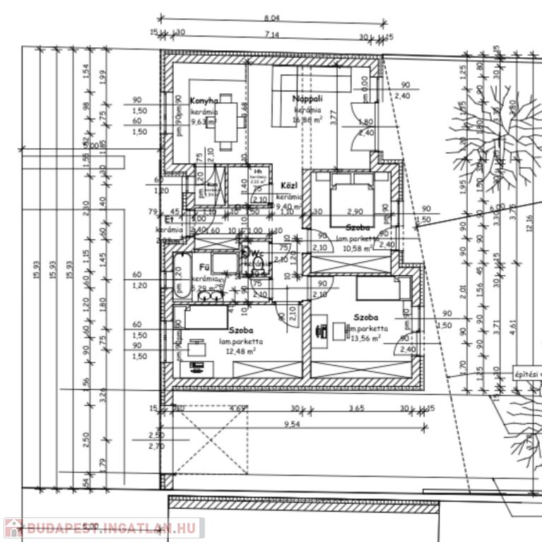
Eladó egy modern, új építésű, Önálló családi ház Nyírtelek nyugodt, zöldövezeti részén. 
 
A ház 83 nm, modern elrendezésű
- 3 külön nyíló szoba, kettő teraszkapcsolatos
- Tágas, világos nappali, amerikai konyha, teraszkapcsolattal
- Kamra
- Fürdőszoba, wc külön helyiségben
- Háztartási helyiség
- Közlekedő elrendezésű.
 
A ház minőségi alapanyagokból, korszerű hőszigeteléssel, energiatakarékos megoldásokkal és gépészeti megoldásokkal épült. 
Tégla falazat (Porotherm 30), 15 cm külső szigetelés, belső falak gépi vakolással, hőszivattyús padlófűtés, Kömmerling 3 rétegű műanyag nyílászáró elektromos redőny vezeték előkészítéssel, 5 kw klíma, cserép tetőfedés, 25 cm födémszigetelés, fedett autóbeálló elektromos garázskapuval szerelve.
 
Az ingatlan kulcsrakész állapotban várja új tulajdonosát, akinek lehetősége van még a belső terek személyre szabására is, így ízlése szerint Választhat szanitereket, burkolatokat, beltéri ajtókat.
 
Telek mérete: 360 nm, körbekerített, utcafronti kerítéssel, autóbejáró elektromos garázskapuval szerelve. 
 
Energetikai besorolás: AA+
 
Amennyiben felkeltette érdeklődését várom hívását!


Vásárlóinknak a szolgáltatás díjtalan!

Az ingatlan azonosítója: 68683Érdeklődni: +36305778872 Az ingatlan azonosítója: 68683 Érdeklődni: +36305778872

Családi ház részletei

Ár: 68 000 000 Ft
Méret: 83 négyzetméter
Azonosító: 11612208
Irodai azonosító: 68683
Ingatlan állapota: Épülő
Jelleg: családi ház
Építőanyag: Tégla
Fűtés jellege: Geotermikus
Kor: 1-5 éves
Egész szobák: 3

Így keressen budapesti ingatlant négy egyszerű lépésben. Csupán 2 perc, kötelezettségek nélkül!

Szűkítse a budapesti ingatlanok
listáját
Válassza ki a megfelelő
budapesti ingatlant
Írjon a hirdetőnek
Várjon a visszahívásra