Eladó családi ház Nyírtelek 66 000 000 Ft

Leírás

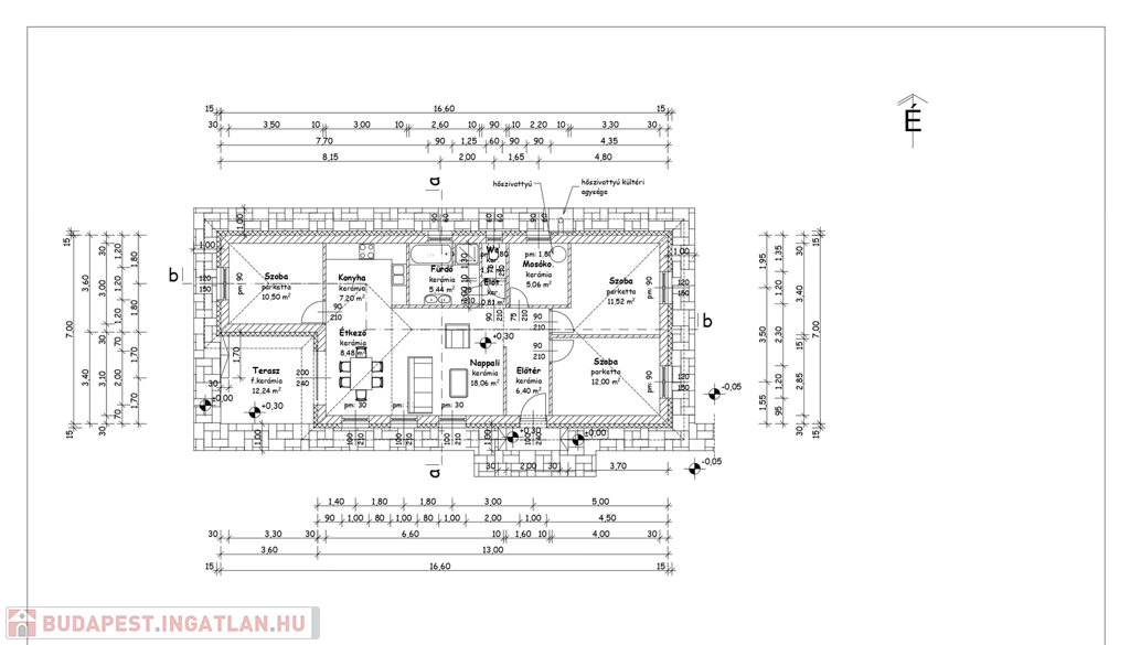
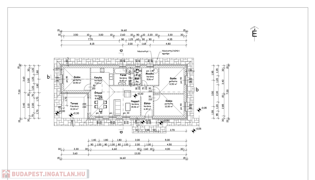
Nyírtelek központjához közel eladó egy 2026 nyarán átadásra kerülő, új építésű, nettó 85 nm-es, önálló családi ház, tágas, 1300 nm-es telken. Az ingatlan praktikus elrendezésű: három külön nyíló szoba és egy világos, teraszkapcsolatos nappali biztosít kényelmes életteret, a fürdőszoba mellett pedig két különálló mellékhelyiség is kialakításra kerül.
A modern műszaki tartalom garantálja az energiatakarékos fenntartást és a komfortos mindennapokat. A fűtésről korszerű hőszivattyús padlófűtés gondoskodik. A 3 rétegű üvegezésű műanyag nyílászárók, a 15 cm-es homlokzati szigetelés, a 30 cm-es födémszigetelés és a 10 cm-es lépésálló aljzatszigetelés kiváló hőtechnikai adottságokat biztosítanak.
Az otthon burkolatai – járólap és laminált parketta – igény szerint választhatók, így leendő tulajdonosa saját ízlésére formálhatja a belső tereket. Ha egy korszerű, jól átgondolt elrendezésű, önálló családi házat keres Nyírtelek frekventált részén, amely hosszú távon is értékálló befektetés, ez az ingatlan kiváló választás lehet.Az ingatlan azonosítója: 99827Érdeklődni: +36303275386 Az ingatlan azonosítója: 99827 Érdeklődni: +36303275386

Családi ház részletei

Ár: 66 000 000 Ft
Méret: 85 négyzetméter
Azonosító: 11600830
Irodai azonosító: 99827
Telek: 1300 négyzetméter
Ingatlan állapota: Épülő
Jelleg: családi ház
Építőanyag: Tégla
Fűtés jellege: Geotermikus
Kor: 1-5 éves
Egész szobák: 3

Így keressen budapesti ingatlant négy egyszerű lépésben. Csupán 2 perc, kötelezettségek nélkül!

Szűkítse a budapesti ingatlanok
listáját
Válassza ki a megfelelő
budapesti ingatlant
Írjon a hirdetőnek
Várjon a visszahívásra