Eladó családi ház Nyírpazony 82 000 000 Ft

Leírás

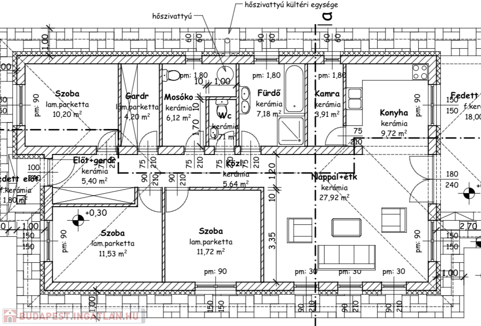
Nyírpazonyban csendes zsák utcájában eladásra kínálok egy újonnan épülő, 105 m²-es, 3 szoba, nappalis, étkezős, önálló tégla építésű szigetelt családi házat. Az ingatlan átadása várhatóan 2026 májusában lesz.
Információk az ingatlanról:

Telek: 700 m²
Tégla építés
Cserép tető
Fűtés: hőszivattyús rendszer
Helyiségek: előszoba, nappali, étkező, konyha, kamra, 3 szoba, fürdőszoba, WC, gardrób, mosókonyha
18 m²-es fedett terasz
kerítés és térkövezés az árban
kedvezményes hitel
Ha hirdetés felkeltette érdeklődését  és több információra van szüksége hívjon bizalommal.
Az ingatlan azonosítója: 98926Érdeklődni: +36209222558 Az ingatlan azonosítója: 98926 Érdeklődni: +36209222558

Családi ház részletei

Ár: 82 000 000 Ft
Méret: 105 négyzetméter
Azonosító: 11569308
Irodai azonosító: 98926
Telek: 700 négyzetméter
Ingatlan állapota: Épülő
Jelleg: családi ház
Építőanyag: Tégla
Fűtés jellege: Geotermikus
Egész szobák: 3

Így keressen budapesti ingatlant négy egyszerű lépésben. Csupán 2 perc, kötelezettségek nélkül!

Szűkítse a budapesti ingatlanok
listáját
Válassza ki a megfelelő
budapesti ingatlant
Írjon a hirdetőnek
Várjon a visszahívásra