Eladó családi ház Nyíregyháza 89 900 000 Ft

Leírás

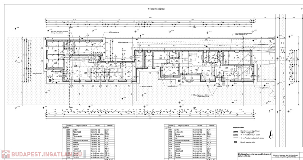
Nyíregyháza Borbánya Kállói út felöli részén, ÚJ ÉPÍTÉSŰ 124 nm-es, 3 szoba + nappali étkező konyha egy légtérben teraszkapcsolattal, fürdő + 2 wc, mosókonyha és kamra, választható járólap és laminált padló burkolattal, egyedi gáz kondenzációs gázkazánnal padló fűtéssel, inverteres klímával, 3 réteg üvegezésű műanyag nyílászárókkal, Porotherm 30 téglából 15 cm homlokzati, 30 cm födém, 10 cm lépésálló hőszigeteléssel ellátott 2 db 5,6nm-es tároló mentén összeépített ikerház, elektromos szekcionált kapuval ellátott 21nm-es garázzsal, 330 nm-es telken, 2026 nyári átadással eladó. Energetikai besorolás A+Az ingatlan azonosítója: 97410Érdeklődni: +36702560693 Az ingatlan azonosítója: 97410 Érdeklődni: +36702560693

Családi ház részletei

Ár: 89 900 000 Ft
Méret: 124 négyzetméter
Azonosító: 11590496
Irodai azonosító: 97410
Telek: 400 négyzetméter
Ingatlan állapota: Épülő
Jelleg: családi ház
Építőanyag: Tégla
Fűtés jellege: Cirkó
Kor: 1-5 éves
Egész szobák: 3

Így keressen budapesti ingatlant négy egyszerű lépésben. Csupán 2 perc, kötelezettségek nélkül!

Szűkítse a budapesti ingatlanok
listáját
Válassza ki a megfelelő
budapesti ingatlant
Írjon a hirdetőnek
Várjon a visszahívásra