Eladó családi ház Nyíregyháza, Oros, 80 500 000 Ft

Leírás

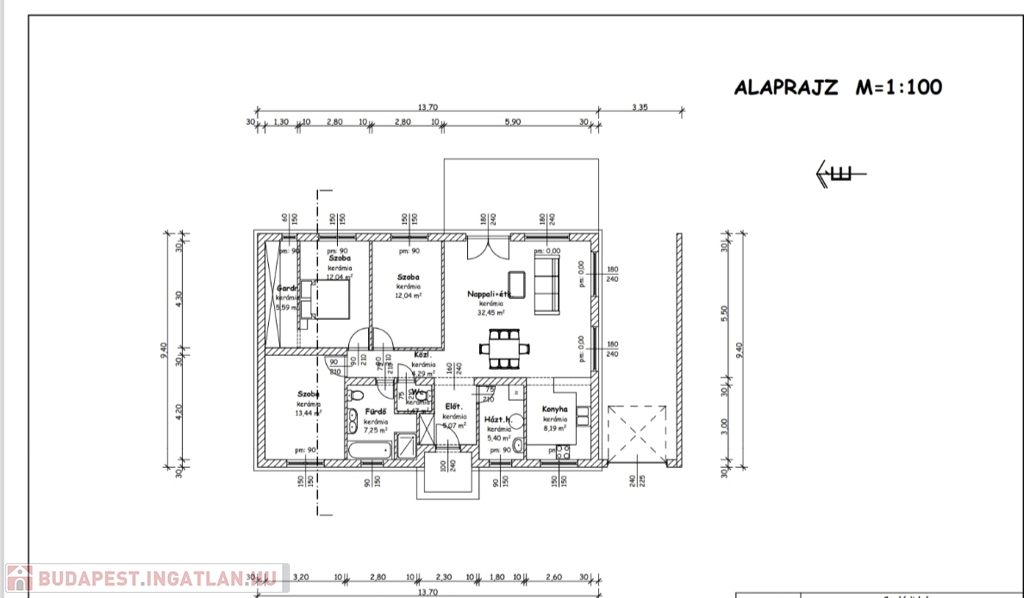
Nyíregyháza–Oros központi részének közelében eladásra kínálunk egy 110 m²-es, modern kialakítású, új építésű családi házat, mely 3 szobával, valamint nappali–konyha–étkező együttesével biztosít kényelmes életteret.
Főbb jellemzők:


energiatakarékos hőszivattyús fűtési rendszer


kiváló hőszigetelés:


15 cm homlokzati hőszigetelés


8 cm padlószigetelés,


30 cm födémszigetelés




3 réteg üvegezésű műanyag nyílászárók


11,2 m²-es fedett terasz


külön mosókonyha és gardrób helyiség


inverteres hűtő-fűtő klímaberendezés


fedett autóbeálló 


Az ingatlan Porotherm-30-as téglából épül, a hozzá tartozó 600 m²-es telekkel
Várható átadás: 2026 második fele, egyedi megállapodás szerint rugalmasan alakítható.
Ideális választás mindazok számára, akik modern, energiatakarékos, nyugodt környezetben lévő otthont keresnek.Az ingatlan azonosítója: 99495Érdeklődni: +36702560693 Az ingatlan azonosítója: 99495 Érdeklődni: +36702560693

Családi ház részletei

Ár: 80 500 000 Ft
Méret: 110 négyzetméter
Azonosító: 11593656
Irodai azonosító: 99495
Városrész: Oros
Telek: 600 négyzetméter
Ingatlan állapota: Épülő
Jelleg: családi ház
Építőanyag: Tégla
Fűtés jellege: Geotermikus
Kor: 1-5 éves
Egész szobák: 3

Így keressen budapesti ingatlant négy egyszerű lépésben. Csupán 2 perc, kötelezettségek nélkül!

Szűkítse a budapesti ingatlanok
listáját
Válassza ki a megfelelő
budapesti ingatlant
Írjon a hirdetőnek
Várjon a visszahívásra