Eladó családi ház Nyárlőrinc 72 900 000 Ft

Leírás

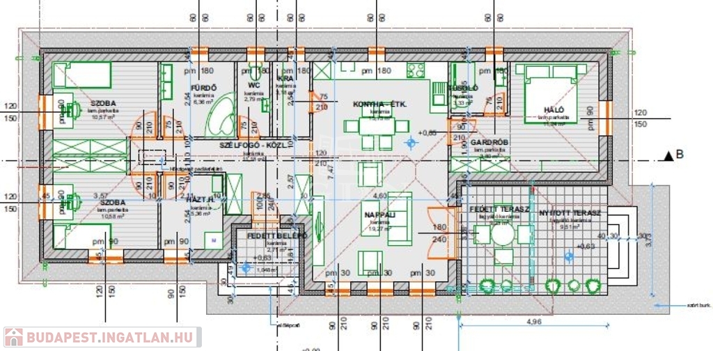
Nyárlőrincen, csendes, kertvárosi, családi házas városrészben 815 nm telken új építésű nettó 103 nm lakóterű, nappali+3 szobás családi ház eladó. Az ingatlan jól megközelíthető, aszfaltos, teljes közművesített utcában található. Hőszigetelt, tégla falszerkezetű, 20 nm burkolt teraszos (10 nm fedett, 10 nm nyitott), nyílászárók fehér színű műanyagok, 3 rétegű üvegezéssel, elektromos redőnnyel, szúnyoghálóval felszerelve. Fűtése gáz cirkó kazánnal, padlófűtés hőleadóval és hűtő-fűtő klímaberendezéssel kiegészítve megoldott. A vételár tartalmaz továbbá led belső lámpákat, tereprendezést, térkő járdát és a kerítést is.
Átgondolt elosztású, minőségi alapanyagok felhasználásával készülő, magas műszaki tartalommal átadásra kerülő ház, amely az élhetőségre és fenntarthatóságra fókuszál.
Várható birtokbaadás: 2026. május. További részletekért, telek megtekintéséért várom hívását!

Családi ház részletei

Ár: 72 900 000 Ft
Méret: 103 négyzetméter
Azonosító: 11553412
Irodai azonosító: 385424
Cím: Vadvirág utca
Telek: 815 négyzetméter
Ingatlan állapota: Épülő
Jelleg: családi ház
Építőanyag: Tégla
Fűtés jellege: Cirkó
Fűtés módja: Gáz
Komfort fokozat: Összkomfort
Kor: Új építésű
Szintek száma: Földszintes
Egész szobák: 4

Egyéb jellemzők

  • Csatorna
  • Garázs
  • Pince
  • Terasz

Térkép


Így keressen budapesti ingatlant négy egyszerű lépésben. Csupán 2 perc, kötelezettségek nélkül!

Szűkítse a budapesti ingatlanok
listáját
Válassza ki a megfelelő
budapesti ingatlant
Írjon a hirdetőnek
Várjon a visszahívásra