Eladó családi ház Nyáregyháza 76 900 000 Ft

Leírás

Költözzön Álomotthonába, Budapestről gyorsan elérhető Nyáregyházára!
KIVÁLÓ ÁR-ÉRTÉK ARÁNYÚ HÁZ!
ÚJ ÉPÍTÉSŰ, ÖNÁLLÓ, CSALÁDI HÁZ ELADÓ, ÚJ PARCELLÁZÁSÚ RÉSZEN, SZÉP HÁZAK KÖRNYEZETÉBEN!
Kiváló a tömegközlekedés: 5 perces sétával buszmegálló elérhető ahonnan a Monorierdő vasútállomás 9 perc és innen Budapestet 20 perc alatt elérjük.

Cégünk több éves szakmai tapasztalattal rendelkezik a prémium ingatlanok építése terén! Referenciaházaink megtekinthetők, hogy Ön is megbizonyosodjon a minőségünkről!

Kiemelkedő telek adottságok:
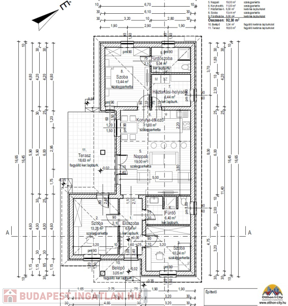
Telek terület: 800 nm

Luxus elrendezés:
Modern, világos amerikai konyhás nappali terasz kapcsolattal
3 különálló hálószobából 1 közvetlen teraszkapcsolattal rendelkezik
Dupla fürdőszobából a nagyobb méretű épített zuhannyal és fürdőkáddal
Prémium kivitelezés, energiatakarékos megoldások:
Fűtés: modern, hőszivattyús rendszer – alacsony rezsiköltségek!
A meleg vizet 100 l Ariston okos bojler készíti, ami alkalmazkodik a felhasználói szokásokhoz
A hideg és meleg burkolatok 5.000,-Ft m2-ig választhatóak
Energetikai besorolás: A+, OTTHONSTART HITEL igénybevételére alkalmas
Szigetelés: 12 cm szigetelés az aljzatban, 10 cm grafitos szigetelés a homlokzaton, 30 cm szigetelés a fafödémen

Átadás: 2026.04. kulcsrakészen, 2026.06. használatbavételi engedéllyel, minőségi kivitelezéssel!

Ez az ingatlan nemcsak egy ház – ez egy életérzés! Ha fontos Önnek a nyugalom, a modern életstílus és az energiatakarékos megoldások, akkor ne keressen tovább!

Lépjen időben! Vegye fel velünk a kapcsolatot még ma, és biztosítsa be helyét ebben a csodálatos környezetben!
Hitel esetén díjmentes ügyintézés. Összes bank ajánlata egy helyen, kedvezményekkel.

Nem adta el ingatlanát? NE ADJA EL PIACI ÁR ALATT! Segítünk. Minden ügyfelünknek ingyenesen felmérjük az otthonát! Hívjon vagy írjon, a további információkért.

Családi ház részletei

Ár: 76 900 000 Ft
Méret: 92 négyzetméter
Azonosító: 11582370
Telek: 830 négyzetméter
Ingatlan állapota: Kitűnő
Jelleg: családi ház
Építőanyag: Kérdezzen rá a hirdetőtől »
Szintek száma: 1 szint
Egész szobák: 4

Egyéb jellemzők

  • Csatorna
  • Garázs
  • Kábel TV
  • Melléképület
  • Parketta
  • Pince
  • Terasz

Így keressen budapesti ingatlant négy egyszerű lépésben. Csupán 2 perc, kötelezettségek nélkül!

Szűkítse a budapesti ingatlanok
listáját
Válassza ki a megfelelő
budapesti ingatlant
Írjon a hirdetőnek
Várjon a visszahívásra