Eladó családi ház Nyáregyháza 73 500 000 Ft

Leírás

Kivételes lehetőség
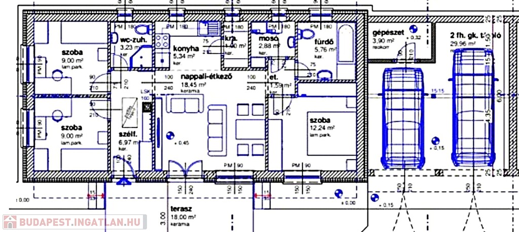
Nyáregyházán kínálom megvételre ezt a kivételes adottságú házat. A telken 2 db ingatlan épül melyek között 2-2 garázs kapott helyet. Az egyedi konyhabútorral felszerelt, házban 3 háló, 2 fürdő (zuhanyzós és sarokkádas ez utóbbiban bidé is beépítésre került), kamra, mosókonyha kapott helyet. Nappalijához 18 m2-es terasz kapcsolódik. A kétállásos garázs mellett található még egy 4 m2-es kazánház , ami ideális kerti szerszámok, tárolására is. Fűtése cirkó kazánnal, 2 db fűtésre optimalizált klímával megoldott. Meleg víz ellátása hőszivattyús bojlerrel történik így az alacsony energiafogyasztás és a meleg víz komfort is megvalósul. Az ingatlan teljes közművel, külön mérőórákkal és H tarifás mérővel rendelkezik, energetikai besorolás A+. Össz. alapterülete 110 m2. Szerkezete tégla, 15 cm szigeteléssel, alumínium bádogozással, beton cserepezéssel.
Belső kialakítása igényes nappaliban rejtett hangulatvilágítás, igényes burkolatok, szaniterek, 3 rtg. nyílászárói redőnnyel, szúnyoghálóval védettek. Az épület minőségi kivitelezésű, építője számos referenciával rendelkezik. Bolt, központ, óvoda, iskola pár perc sétára található. A település kifejezetten hangulatos, élő közösséggel. Megközelíthetősége a 4.számú főútról és az M4-esről is egyszerű. Támogatott lakáshitel igénybe vehető, tehermentes, azonnal költözhető! Ide tényleg csak költözni kell!

Családi ház részletei

Ár: 73 500 000 Ft
Méret: 80 négyzetméter
Azonosító: 11608464
Irodai azonosító: U0049434
Telek: 360 négyzetméter
Ingatlan állapota: Kitűnő
Jelleg: ikerház
Építőanyag: Tégla
Fűtés jellege: Cirkó
Fűtés módja: Gáz
Komfort fokozat: Dupla komfort
Kor: Új építésű
Elhelyezkedés: Udvari
Szintek száma: Földszintes
Egész szobák: 4
Nappalik: 1

Egyéb jellemzők

  • Csatorna
  • Garázs
  • Kábel TV
  • Padlás
  • Terasz

Így keressen budapesti ingatlant négy egyszerű lépésben. Csupán 2 perc, kötelezettségek nélkül!

Szűkítse a budapesti ingatlanok
listáját
Válassza ki a megfelelő
budapesti ingatlant
Írjon a hirdetőnek
Várjon a visszahívásra