Eladó családi ház Nyáregyháza 71 000 000 Ft

Leírás

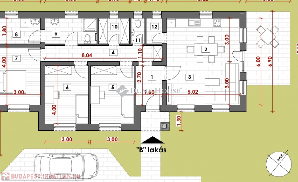
Felső Nyáregyházán Újépítésű ikerház fél!Nyáregyháza központi részén kínálom megvételre ezt a 99 nm alapterületű ikerházfelet. Műszaki leírás : -Beton alap-30-as Leier tégla-15 cm hungarocell szigetelés-Drapp színű nemes vakolat homlokzati záró réteg -Bramac tetőcserép ( barna szinben )-3 rétegű egy színű ablakok-Hőszivattyús fűtésrendszer ( padlón keresztül történő hőleadással )-1 db hűtő-fűtő klíma ( nappaliban )- Napelemes rendszer előkészítése ( napelemek nélkül )Hideg- Meleg burkolatok 6000 Ft / nm árban választhatóak-Szaniterek , beltéri ajtók és lámpatestek az árban . Várható átadás : 2026. 08. hóMegtekintéskor a teljes műszaki tartalmat prezentálom !Amennyiben hirdetésem felkeltette érdeklődését várom megtisztelő hívását a hét bármely napján .

71000000 Ft

Családi ház részletei

Ár: 71 000 000 Ft
Méret: 90 négyzetméter
Azonosító: 11576991
Irodai azonosító: HZ062378-5075859
Cím: Nyáregyházai 90 nm-es ház eladó
Telek: 435 négyzetméter
Ingatlan állapota: Épülő
Jelleg: ikerház
Építőanyag: Tégla
Fűtés jellege: Villany
Fűtés módja: Hőszivattyú
Kor: Új építésű
Szintek száma: Földszintes
Egész szobák: 4

Térkép


Így keressen budapesti ingatlant négy egyszerű lépésben. Csupán 2 perc, kötelezettségek nélkül!

Szűkítse a budapesti ingatlanok
listáját
Válassza ki a megfelelő
budapesti ingatlant
Írjon a hirdetőnek
Várjon a visszahívásra