Eladó családi ház Nagykanizsa 129 900 000 Ft

Leírás

Nagykanizsa belvárosában, a város szívében található ez a kiváló állapotú, 2021-ben teljes körűen felújított családi ház, amely tökéletes választás lehet mindazok számára, akik kényelmes és tágas otthonra vágynak, vagy akár befektetési céllal keresnek ingatlant.
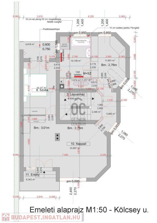
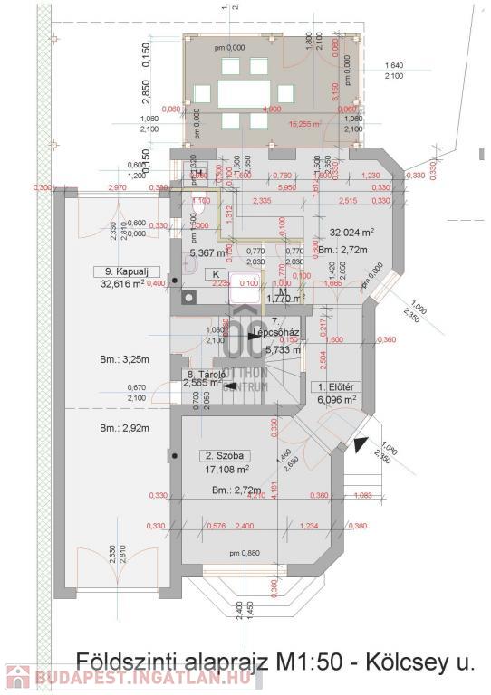
Az ingatlan egy 496 m2-es telken helyezkedik el, nettó 272 m2-es alapterülettel rendelkezik, amely hét szobát és négy fürdőszobát foglal magában, így ideális lehet nagyobb családok számára, vagy akár üzleti célra, vendégház üzemeltetésére, kiadásra.
Mindhárom külön bejáratú lakrész önállóan is funkcionál.
Minden szinten külön-külön gáz cirkó kazán biztosítja a fűtést és a meleg víz ellátást.
Így 3 db gázóra lett felszerelve és kettő külön álló villanyóra.
Az összes nyílászáró műanyag szerkezetű.
A külső falak 12 cm-es hőszigetelést kaptak.
A tetőtérben klíma gondoskodik a megfelelő hőmérsékletről.
A földszinti, utca fronti és hátsó bejárattal is rendelkező akadálymentesített lakás 78 m2-es, amerikai konyhás nappali, szoba, fürdőszoba + WC, előszoba, terasz helyiségekből áll.
Az első szinten lévő 90 m2-es lakásban előszoba, nappali + étkező + konyha, szoba, fürdő, 2 WC, gardrób és 2 db erkély lett kialakítva.
A tetőtéri lakrész 82 m2-es, ahol nappali + konyha + étkező, 2 db szoba, 2 db fürdő + WC, előszoba, tároló helyezkedik el.
A ház terasza 23 négyzetméteres, ahol a napfényes reggeleket élvezheti.
A kettő darab tároló összesen 30 m2-es.
A garázsajtón keresztül egy fedett kapubejáróba jutunk (33 m2), amelyen keresztül érhetjük el a belső kertet, ahol egy 43 m2-es fedett gépkocsibeálló került kialakításra.
A ház és az udvar alatt egy 42 m2-es boltíves pince található.
A környék rendkívül kedvező adottságokkal bír: a belváros közelsége miatt minden fontosabb szolgáltatás, mint például boltok, éttermek és iskolák könnyedén elérhető.
A tömegközlekedési lehetőségek is kiválóak.
Az autós közlekedés szempontjából is ideális, hiszen a főbb közlekedési útvonalak, valamint a gyorsforgalmi utak könnyen megközelíthetők.
A környék biztonságos és csendes, amely lehetőséget biztosít a nyugodt mindennapok eltöltésére, miközben a város pezsgése is karnyújtásnyira van.
Ez az ingatlan nemcsak egy otthon, hanem egy lehetőség is, hogy egy értékes ingatlan birtokosa legyen, amely hosszú távon megtérülő befektetést is jelenthet.
Bármilyen kérdés esetén szívesen állok rendelkezésére, hogy segítsek Önnek megtalálni álmai otthonát vagy befektetését.
Az ingatlan piaca folyamatosan változik, ezért érdemes mihamarabb lépni, hogy ne maradjon le erről a páratlan lehetőségről.
Kérem, ne habozzon kapcsolatba lépni velem, hogy további részleteket oszthassak meg Önnel, és lehetőséget biztosíthassak az ingatlan megtekintésére.

Irodánk teljes körű szolgáltatást nyújt kereső ügyfeleinek.
Szakszerű tanácsadással, ingyenes CSOK és hitelügyintézéssel, energetikai tanúsítvány elkészítésével és kedvező díjszabású ügyvéddel nyújtunk segítséget!
Érdeklődni: Zwickl László +36/70-454-0466

Családi ház részletei

Ár: 129 900 000 Ft
Méret: 272 négyzetméter
Azonosító: 11435823
Irodai azonosító: H492355-4761928
Telek: 496 négyzetméter
Ingatlan állapota: Átlagos
Jelleg: családi ház
Építőanyag: Tégla
Fűtés jellege: Cirkó
Fűtés módja: Gáz
Kor: 21-50 éves
Szintek száma: Földszintes
Egész szobák: 7

Térkép


Így keressen budapesti ingatlant négy egyszerű lépésben. Csupán 2 perc, kötelezettségek nélkül!

Szűkítse a budapesti ingatlanok
listáját
Válassza ki a megfelelő
budapesti ingatlant
Írjon a hirdetőnek
Várjon a visszahívásra