Eladó családi ház Nágocs 72 300 000 Ft

Leírás

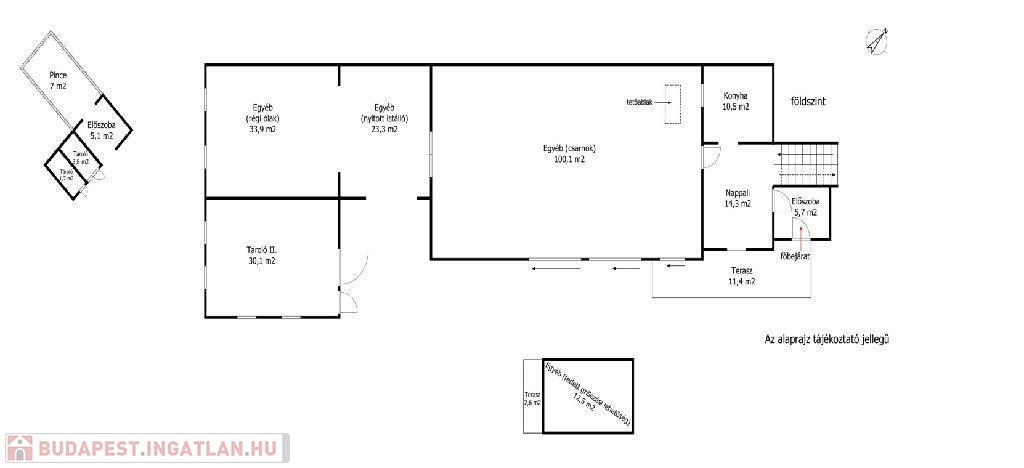
Nágocson eladó egy kiváló állapotú, téglaépítésű családi ház, amelyhez kiemelkedő mezőgazdasági adottságokkal rendelkező, összesen 17 200 m2-es terület tartozik. Nágocs Somogy vármegyében, a Balaton déli térségében helyezkedik el, a Balatontól 25-30 km-re, míg az igali gyógyfürdőtől mindössze 15 km-re. A 170 m2-es, többszintes lakóingatlan földszintből, első és második emeletből, beépített tetőtérből, valamint alagsori részből áll. Az épületben 5 szoba, 2 fürdőszoba, kamra, garázs, kazánház kapott helyet, illetve egy vadiúj, igényesen kialakított konyharész, valamint több beépített szekrény szolgálja a mindennapi kényelmet.
A ház központi fűtéssel rendelkezik, gáz- és fatüzelési lehetőséggel, a meleg vizet villanybojlerek adják . A földszinten minden nyílászáró műanyagra cserélt, a felsőbb szinteken található fa nyílászárók pedig szintén kiváló állapotúak, redőnnyel és szúnyoghálóval felszereltek. Az épület szigetelt, folyamatosan felújított, karbantartott, azonnal használatba vehető állapotú.
A 17 200 m2-es telek jelentős része, 15 557 m2 szántó, amely földművelésre, kertészetre, takarmánytermesztésre vagy önellátó gazdálkodásra alkalmas. A területen számos gyümölcsfa található illetve az udvarban egy hangulatos fedett pergola.
A gazdasági épületek kiemelkedőek: rendelkezésre áll 100 m2 több funkciót ellátó melléképület (állatartás, pince..stb.), valamint egy 100 m2-es, több mint 3,5 m belmagasságú csarnok, amely traktorok, mezőgazdasági gépek, eszközök tárolására kiválóan alkalmas.
Az ingatlan irányáron kerül meghirdetésre, alkuképes, a bútorozás külön megállapodás tárgyát képezi, számos berendezési tárgy az ingatlanban maradhat, ami jelentősen megkönnyíti az azonnali beköltözést.
Megfelel az Otthon Start program feltételeinek, így lehetőséget kínál azok számára is, akik állami támogatással szeretnék megvalósítani otthonteremtési terveiket.

Referencia szám: M319728

Családi ház részletei

Ár: 72 300 000 Ft
Méret: 170 négyzetméter
Azonosító: 11590884
Irodai azonosító: M319728-5119182
Telek: 17261 négyzetméter
Ingatlan állapota:
Jelleg: családi ház
Építőanyag: Tégla
Fűtés jellege: Házközponti
Komfort fokozat: Összkomfort
Kor: 21-50 éves
Szintek száma: 3 szint
Egész szobák: 4
Fél szobák: 1

Egyéb jellemzők

  • Garázs

Térkép


Így keressen budapesti ingatlant négy egyszerű lépésben. Csupán 2 perc, kötelezettségek nélkül!

Szűkítse a budapesti ingatlanok
listáját
Válassza ki a megfelelő
budapesti ingatlant
Írjon a hirdetőnek
Várjon a visszahívásra