Eladó családi ház Monor 89 800 000 Ft

Leírás


Megvételre kínálunk Monoron egy FELÚJÍTOTT, HÓSZIVATTYÚS, KLÍMÁS, teraszos, 96 nm-es, 5 szobás ikerházat. Minőségi alapanyagokból, igényes kivitelezés jellemzi a projektet, ahol a biztonság és a kényelem mellett az energiatakarékosság volt a fő szempont. Az ingatlan fűtéséről, valamint a használati melegvíz ellátásáról egy modern, energia takarékos, innovatív levegő-víz hőszivattyú gondoskodik H tarifás üzemeltetéssel.

Ennek köszönhetően a rezsi költségek minimalizálódnak.



Az ingatlan hűtéséről egy klíma berendezés fog gondoskodni.



Ennél a beruházásnál most lehetősége van kompromisszumok nélkül egy olyan lakásba költözni, ahol Ön kiválaszthatja a hideg és meleg burkolatokat, szanitereket, valamint az egyéb kiegészítőket a családja legnagyobb megelégedésére, ez által személyre szabva álmai otthonát.

A kulcsra kész ár tartalmazza a redőnyöket, három rétegű nyílászárókat, riasztó előkészítést, kaputelefon és motoros kapu kiépítést.



A gépjárművekkel az ingatlanhoz tartozó térkövezett beállón lehet biztonságosan parkolni.



Az ingatlanhoz 100 nm-es telek tartozik



Az ingatlan árát a kulcsrakész állapotra adtuk meg.



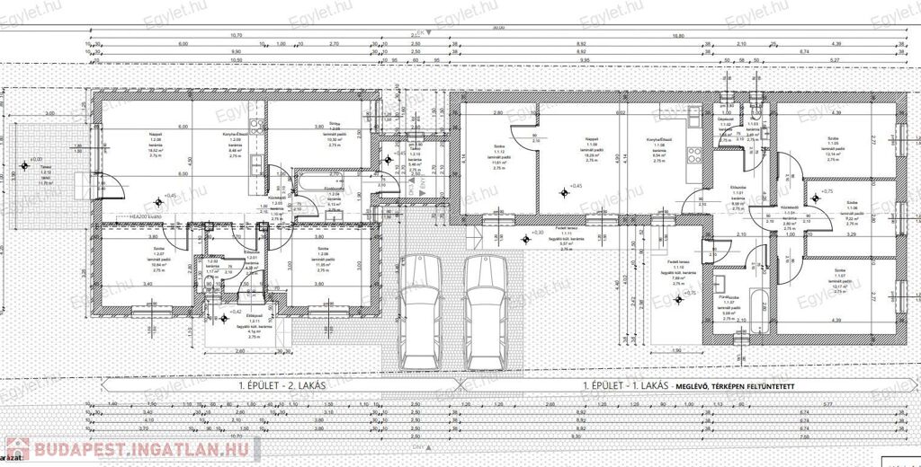
Helyiség lista:

- Előszoba

- WC

- Négy hálószoba

- Fürdőszoba

- Amerikai konyha,

- Étkező

- Nappali

- Gépészeti helyiség

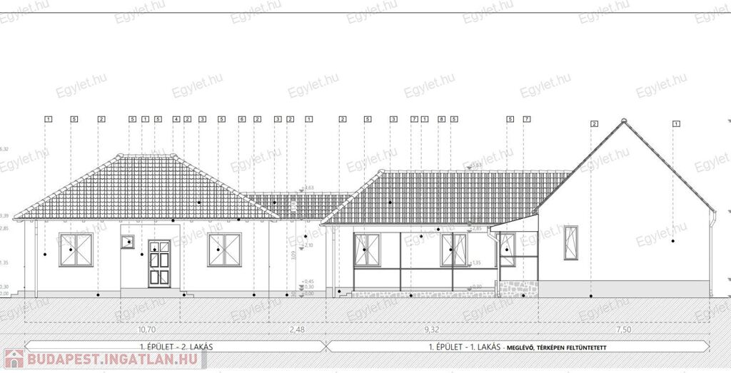
- Előterasz



Az ingatlan biztonságos, nyugodt, csendes, kertes házas övezetében, Monor egyik legszebb részén található. A környék fejlett infrastruktúrájának köszönhetően bővelkedik a szociális intézményekben, bölcsőde, óvoda, általános iskola, orvosi intézmények, bevásárlási lehetőségek, találhatóak a közelben.

Közlekedése kiváló, busszal a centrum vagy vonattal a Nyugati pu. rövid idő alatt megközelíthető. Az M4-es autópálya öt perc alatt elérhető.



Hitel, CSOK igénylésben díjmentes ügyintézéssel állunk rendelkezésére! Nálunk kiválaszthatja az Ön számára legkedvezőbb ajánlatot.



Várom megtisztelő érdeklődésüket.

 

 

Családi ház részletei

Ár: 89 800 000 Ft
Méret: 96 négyzetméter
Azonosító: 11603634
Irodai azonosító: 209002190
Telek: 100 négyzetméter
Ingatlan állapota: Felújított
Jelleg: ikerház
Építőanyag: Tégla
Komfort fokozat: Összkomfort
Egész szobák: 5

Így keressen budapesti ingatlant négy egyszerű lépésben. Csupán 2 perc, kötelezettségek nélkül!

Szűkítse a budapesti ingatlanok
listáját
Válassza ki a megfelelő
budapesti ingatlant
Írjon a hirdetőnek
Várjon a visszahívásra