Eladó családi ház Monok 29 900 000 Ft

Leírás

Monokon eladó egy keresztúri és szilikát blokkból épült, stabil szerkezetű, 93 nm hasznos alapterületű családi ház műanyag nyílászárókkal. Az ingatlan három különálló hálószobával és egy tágas nappalival rendelkezik, jól átgondolt, praktikus elrendezéssel.

A szobák burkolata laminált padló, míg a többi helyiségben strapabíró csempeburkolat található. A ház frissen festett, rendezett állapotú, azonnal költözhető.

Az épület alatt dupla garázs kapott helyet, külön bejárattal, valamint egy vizesblokkal és mosókonyha résszel, amely jelenleg befejezésre vár – ez további értéknövelő lehetőség, akár háztartási helyiségként, akár műhelyként vagy tárolóként hasznosítva.

A 527 nm‑es telek könnyen karbantartható, ugyanakkor elegendő teret biztosít további fejlesztésekhez. A beépíthető tetőtér jelentős bővítési potenciált kínál, amely növeli az ingatlan hosszú távú értékét és hasznosíthatóságát.

Csendes, rendezett környezetben található, így alkalmas állandó lakhatásra, de befektetési célra is kifejezetten jó választás a szerkezeti adottságok, a bővíthetőség és a többfunkciós alsó szint miatt.

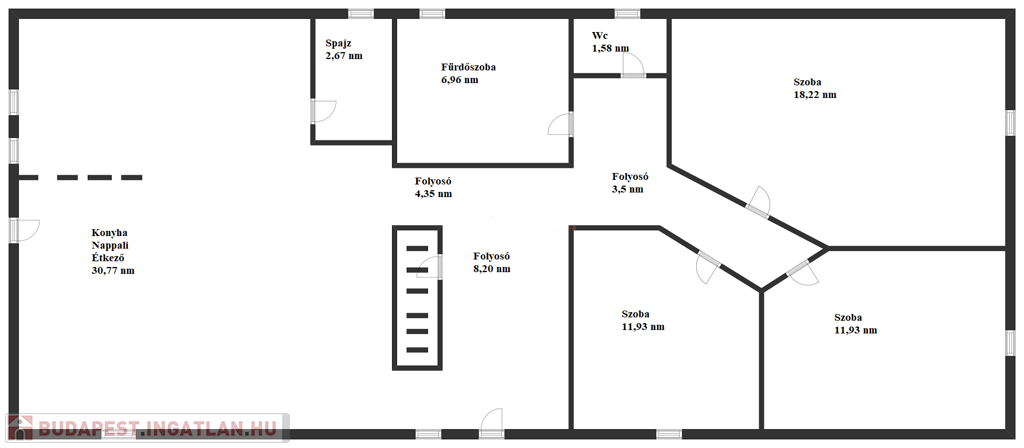
Helység lista:
1.Szoba: 18,22 nm
2.Szoba: 11,93 nm
3.szoba: 11,93 nm
Közlekedő: 16,05 nm
Wc: 1,58 nm
Fürdő: 6,96 nm
Kamra: 2,67 nm
Konyha + Nappali + Étkező: 30,77 nm

Családi ház részletei

Ár: 29 900 000 Ft
Méret: 93 négyzetméter
Azonosító: 11609522
Irodai azonosító: 349533
Telek: 527 négyzetméter
Ingatlan állapota:
Jelleg: családi ház
Építőanyag: Tégla
Fűtés jellege: Cirkó
Fűtés módja: Gáz
Komfort fokozat: Komfort
Egész szobák: 3

Egyéb jellemzők

  • Terasz

Így keressen budapesti ingatlant négy egyszerű lépésben. Csupán 2 perc, kötelezettségek nélkül!

Szűkítse a budapesti ingatlanok
listáját
Válassza ki a megfelelő
budapesti ingatlant
Írjon a hirdetőnek
Várjon a visszahívásra