Eladó családi ház Mohács 54 990 000 Ft

Leírás

Félkész családi ház eladó Mohács egyik legszebb utcájában!
Ez a lakóparki ingatlan, kiváló lehetőséget nyújt azok számára, akik saját igényeik szerint szeretnék befejezni és kialakítani jövőbeli otthonukat.
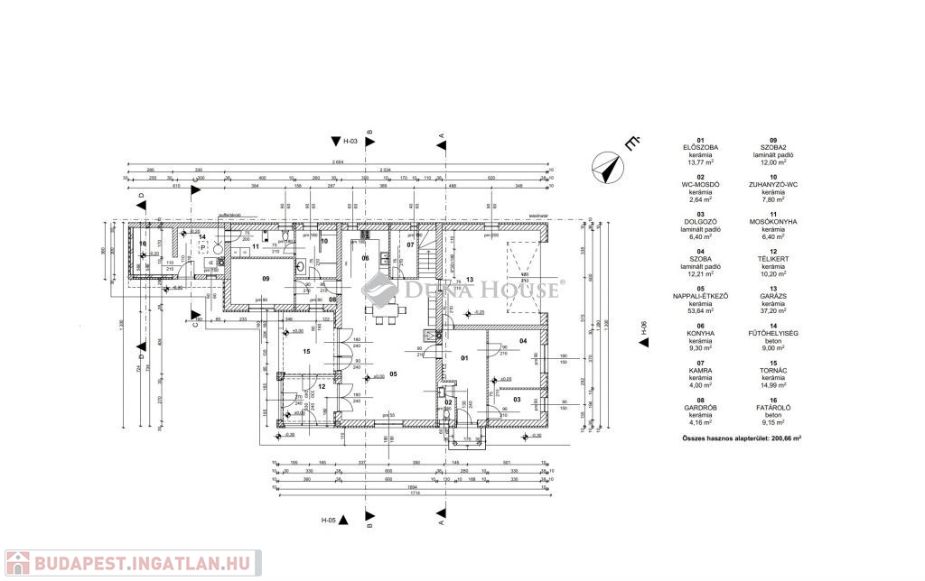
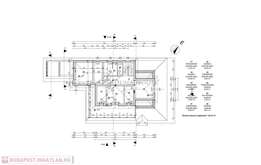
Az ingatlan 880 m²-es telken helyezkedik el, a tervezett 333 m² alapterületű épület pedig tágas, jól alakítható tereket biztosít, így akár egy nagyobb család számára is ideális prémium otthon valósítható meg.
A kivitelezés folytatásában teljes körű segítséget tudunk biztosítani, hiszen minden szükséges szakember rendelkezésre áll az építkezés befejezéséhez.
Az építkezés főbb adatai:
38 cm-es Leiertherm tégla falazat
Monolit födém mindkét szintenTerrán Danubia barna cserépfedés
A telek teljes közműellátottsággal rendelkezik: villany, gáz ,víz, szennyvíz kábel TV.
Az ingatlan jelenlegi állapota nagy szabadságot ad a belső terek kialakításában, így minden részlet a leendő tulajdonos elképzelései szerint valósítható meg. Ha egy kiváló elhelyezkedésű ingatlant keres, ahol saját elképzelései szerint alakíthatja ki álmai otthonát, akkor ez a lehetőség Önre vár.
Hívjon ,nézzük meg együtt és tervezzük meg új otthonát!
Jöjjön nézzük meg együtt ! 06209737207

Referencia szám: HZ075744

Családi ház részletei

Ár: 54 990 000 Ft
Méret: 333 négyzetméter
Azonosító: 11614458
Irodai azonosító: HZ075744-5207158
Telek: 880 négyzetméter
Ingatlan állapota:
Jelleg: családi ház
Építőanyag: Tégla
Fűtés jellege: Egyedi
Fűtés módja: Gáz
Szintek száma: Földszintes
Egész szobák: 8

Térkép


Így keressen budapesti ingatlant négy egyszerű lépésben. Csupán 2 perc, kötelezettségek nélkül!

Szűkítse a budapesti ingatlanok
listáját
Válassza ki a megfelelő
budapesti ingatlant
Írjon a hirdetőnek
Várjon a visszahívásra