Eladó családi ház Mátraszőlős 18 300 000 Ft

Leírás

Pásztó mellett, Mátraszőlősön, kitűnő állapotú, nagy családiház eladó! A ház kis forgalmú, kellemes utcában, szép, békés környezetben fekszik. Tartozik hozzá egy nagy alapterületű, garázsokat is magába foglaló melléképület, valamint egy nagy, két részre osztott telek, aminek az első részébe kényelmesen be lehet hajtani autóval, a hátsó része pedig egy nagy, megművelt kert. Bőséges hozamú ásott kút van az udvarban, aminek a felhasználását a házban hidrofor biztosítja.
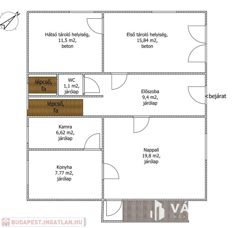
Az ingatlan szép állapotú, jelenleg is lakott, karbantartott. Jelenlegi kialakításában négy szoba, konyha, kamra, fürdőszoba és külön vécé található. A lakószinten további két helyiség is van, amit jelenleg csak tárolásra használnak, de könnyedén kényelmes szobává alakíthatóak.
A padlásra kényelmes lépcső vezet a lépcsőházból, ezért annak beépítése is lehetséges.
A ház alatt nagy, száraz pince van, itt helyezkedik el a központi fűtést biztosító kazán, és a hidrofor.
A ház mellett egy nagy melléképület is található, ami szintén alápincézett.
Ez az ingatlan nem csak tágas, de minden kényelmet biztosít a tulajdonosának. Háromfázisú árambetáplálással, továbbá víz, és szennyvízbekötéssel is rendelkezik.
A gázcsonk az udvarban van, így annak bekötése is könnyen megoldható. Optikai internettel, és kábeltelevízióval is ellátott az utca.
Az autóbusz-közlekedés kitűnő, óránként Pásztóra, két óránkét Salgótarjánba jár a busz, Mátraszele elején pedig a távolsági buszmegálló van, ahonnan óránként megy Budapestre menetrend szerinti járat.
Ez a kitűnő ház már túl nagy a jelenlegi lakóknak, ezért döntöttek az eladása mellett. Most rendkívül kedvező áron, mindössze 18,3 MFt-ért megszerezhető!

Mátraszőlős Pásztó közvetlen szomszédságában található, jelentős történelmi múlttal bíró település, első írásos említése, már IV.Béla idejében, 1229-ben megtörtént. Műemlékei mellett gyönyörű természeti környezete is értékessé teszik a falut.

Ha felkeltettem az érdeklődését hívjon bizalommal a +36 70 423 1304-es telefonszámon!
(További képekért és információkért kérem hívjon!)

Családi ház részletei

Ár: 18 300 000 Ft
Méret: 147 négyzetméter
Azonosító: 11560399
Irodai azonosító: 238331
Telek: 1376 négyzetméter
Ingatlan állapota: Felújított
Jelleg: családi ház
Építőanyag: Tégla
Fűtés jellege: Cserépkályha
Egész szobák: 4
Nappalik: 3

Egyéb jellemzők

  • Beépíthető tetőtér
  • Csatorna
  • Garázs
  • Melléképület
  • Pince
  • Terasz

Így keressen budapesti ingatlant négy egyszerű lépésben. Csupán 2 perc, kötelezettségek nélkül!

Szűkítse a budapesti ingatlanok
listáját
Válassza ki a megfelelő
budapesti ingatlant
Írjon a hirdetőnek
Várjon a visszahívásra