Eladó családi ház Maglód 59 000 000 Ft

Leírás

CSAK NÁLUNK!

ÉPÍTKEZŐK – Építési VÁLLALKOZÓK figyelmébe ajánlom!

ÉPÍTÉSI TELEKKÉNT vagy FELÚJÍTANDÓ házként, egyaránt remek befektetés!

Övezeti besorolása: Lke-3


ÉRVÉNYES ÉPÍTÉSI ENGEDÉLLYEL RENDELKEZŐ, FELÚJÍTANDÓ ingatlan, megfizethető áron!

Maglód, Nyaraló városrészén eladó egy nettó 70,77 m² hasznos területű, 2 szobás ÖNÁLÓ CSALÁDIHÁZ + 26,4 m² tároló.

Az épületek, egy összesen 1467 m² összközműves telken helyezkednek el, amely jelenleg, 2 helyrajzi számon van nyilvántartva!


Az első helyrajzi számmal jelölt telken, a következő épületek vannak:

A lakóház falazata 40 cm vastag sóskúti mészkő. A födém vasbeton gerendázatú, salak feltöltés szigeteléssel ellátott, a tetőt pala fedi.

A ház jelenleg szerkezetig ki van takarítva.

A külső nyílászárók kapcsolt gerébtokos fa ablakok.

A házat riasztó és külső telepítésű kamera védi.

A melléképületek egy része alatt, ~ 8 m² pince húzódik.

A kertben ásott gyűrűs kutat is találunk, mellette egy tágas hidrofor akna van.

Az épületben éjszakai áram is ki van építve.

Jelenlegi helységlista:

- 23,01 m² nappali szoba,
- 15,37 m² szoba,
- 9,1 m² konyha,
- 6,08 m² előszoba,
- 7,38 m² közlekedő,
- 3,15 m² WC, zuhanyzó,
- 1,97 m² padlásfeljáró,
- 4,72 m² tároló van.


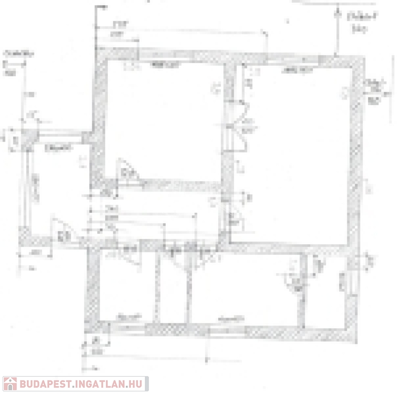
A TERVEZETT BŐVÍTÉS után 85,11 m² 2 +2 szobás lenne az új épület.

Az ENGEDÉLYEZETT, JÓVÁHAGYOTT tervdokumentáció rendelkezésre áll, a RENDSZERBEN fel van TÖLTVE!


A tervezett épület helységei a bővítés után:

- 32,44 m² Nappaliszoba + étkező – konyha,
- 13,65 m² szoba,
- 10,15 m² félszoba,
- 10,15 m² félszoba,
- 7,91 m² közlekedő,
- 3,23 m² kamra,
- 5,98 m² fürdő,
- 1,6 m² WC lenne.

A hátsó, másik helyrajzi számmal jelölt telken:

Áll egy 1992-ben épült faház, amely állapotát tekintve felújítandó.

Az épület a térképszelvényen nincs feltüntetve!

Falazata fa szerkezetű, tetejét hullámpala fedi.

A földszinti bruttó alapterülete 23 m2 + tetőtér.

Helységlista a földszinten
- nappali
- konyha
- zuhanyzó
- tároló helység
- lépcsőfeljáró,
- az emeleten 2 szoba van.

A házba a vezetékes víz és a villany be van vezetve, a szennyvíz, emésztő gödörbe megy.



Az Lke-3, övezeti besorolás szerint az építési előírás:

- A kialakítható telek, legkisebb területe 1000 m²,
- kialakítható legkisebb telek-szélessége 17 m,
- a beépítési mód, oldalhatáron álló,
- a beépítettség megengedett legnagyobb mértéke 30%,
- az épületmagasság megengedett (legkisebb)-legnagyobb mértéke (-) - 5,5,
- a zöldfelület legkisebb mértéke 50%,


A részletes szabályozást megtalálhatja a lenti honlapon :
https://or.njt.hu/onkormanyzati-rendelet/2016-4-SP-361


Az ingatlan RUGALMASAN MEGTEKINTHETŐ!

NÉZZE MEG TEGYEN AJÁNLATOT!

Az infrastruktúra, és közlekedés jó!

Iskola, óvoda, élelmiszerüzletet, cukrászda, orvosi rendelő, művelődési ház, egyéb vásárlási lehetőség, stb…. séta távolságban van.


A GDN HitelCentrum, KÖTELEZETTSÉG MENTESEN és DÍJMENTESEN, versenyezteti Önért a bankok hitelajánlatait. Ismerje meg a vissza nem térítendő állami támogatásokat!

• babaváró,
• CSOK+
• hitel,
• megtakarítás,
• és EGYÉB BANKI tranzakcióban segítségére lehetünk!

• Igény esetén, ÜGYVÉDI segítséget nyújtunk, MEGFIZETHETŐ áron!


Ha az ingatlannal kapcsolatban bővebb felvilágosításra lenne szüksége, hívjon bizalommal, állok rendelkezésére!

F.M.

Családi ház részletei

Ár: 59 000 000 Ft
Méret: 70 négyzetméter
Azonosító: 11496075
Irodai azonosító: 379414
Cím: Maglódnyaraló- Építési telek
Telek: 1467 négyzetméter
Ingatlan állapota: Átlagos
Jelleg: családi ház
Építőanyag: Tégla
Fűtés jellege: Egyéb
Komfort fokozat: Összkomfort
Kor: 50 évesnél régebbi
Szintek száma: Földszintes
Egész szobák: 2

Egyéb jellemzők

  • Csatorna
  • Garázs
  • Pince
  • Terasz

Térkép


Így keressen budapesti ingatlant négy egyszerű lépésben. Csupán 2 perc, kötelezettségek nélkül!

Szűkítse a budapesti ingatlanok
listáját
Válassza ki a megfelelő
budapesti ingatlant
Írjon a hirdetőnek
Várjon a visszahívásra