Eladó családi ház Komárom 86 400 000 Ft

Leírás

KULCSRAKÉSZ, AZONNAL KÖLTÖZHETŐ OTTHONOK KOMÁROM SZŐNYI VÁROSRÉSZÉBEN!

Csendes, barátságos lakóövezetben, saját telekkel rendelkező, új építésű sorházi lakások várják új tulajdonosaikat – most jelentős árkedvezménnyel + 3%-os hitellel és akár lakás beszámítással is!

A Dot-Ing ingatlan- és hiteliroda kiemelt kínálatában olyan otthonokat talál, amelyek egyszerre kínálnak modern kényelmet, fenntartható technológiát és minőségi életstílust.

Miért különleges ez az ajánlat?
• Kiváló ár-érték arány
• Saját, körbekerített telek
• Térkő burkolatú udvarrész + kerti tároló
• Környezettudatos építőanyagok és technológia
• Modern, energiatakarékos megoldások
• Használatbavételi engedéllyel rendelkezik – kulcsrakész, azonnal költözhető!

Életérzés, amit nyújt:
Reggel a saját kertjében kávézhat, gyermekei szabadon játszhatnak a biztonságos udvaron, Ön pedig nyugodt, harmonikus környezetben élhet – mindezt az iskola közvetlen közelében.

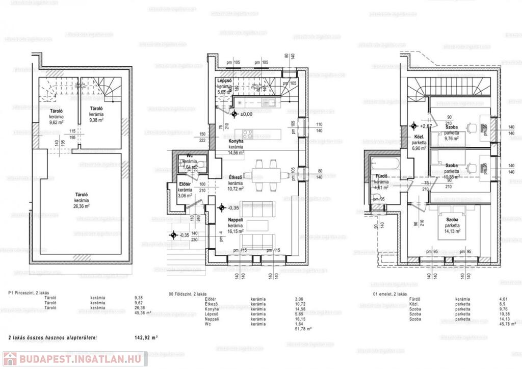
Az 1. lakás főbb adatai:
• 122 nm + saját telek és utcafronti kocsibeálló
• Pince + lakószint + tetőtér kialakítású
• Földszint: tágas előtér, amerikai konyhás nappali, közlekedő, WC, terasz
• Tetőtér: 3 hálószoba, gardrób szoba, fürdő-WC
• Pinceszint: mosókonyha + nagy tárolóhelyiségek

A 2. lakás főbb adatai:
• 143 nm + saját telek és utcafronti kocsibeálló
• Pince + lakószint + tetőtér kialakítású
• Földszint: előtér, amerikai konyhás nappali, WC, lépcsőtér, terasz
• Tetőtér: előtér, 3 szoba, fürdő-WC
• Pinceszint: mosókonyha, 2 kisebb tároló, nagyobb helyiség (akár edzőterem, szauna, relaxációs tér kialakítására is)

Műszaki tartalom:
• Beton alapozás, Porotherm falazat
• 15 cm szigetelés + nemesvakolat
• Vasbeton födém, faszerkezetű nyeregtető betoncseréppel
• 3 rétegű üvegezésű, redőnnyel és szúnyoghálóval felszerelt nyílászárók
• Levegő-víz hőszivattyús padlófűtés
• Pinceszinten hővisszanyerős szellőző + fúrt kút
• Tetőtérben klíma előkészítés

Kulcsrakész tartalom:
• Térkő burkolatú udvar
• Hideg- és melegburkolatok,
• I. osztályú szaniterek
• Beltéri ajtók

Az előnyök röviden:
- Környezettudatos, időtálló kivitelezés
- Modern, fenntartható otthon a jövő igényeire szabva
- Kiváló ár-érték arány
- Saját kert, saját parkoló

Miért most a legjobb döntés?
- Az ingatlan ára most kedvezőbb
- A 3%-os Otthon Start hitel segítségével biztonságos, fix kamattal finanszírozhat
- A két előny együtt hatalmas megtakarítást és árelőnyt jelent
- Így egy modern, kulcsrakész otthonhoz juthat, amely nemcsak szép, hanem okos befektetés is

Ne hagyja ki ezt a ritka lehetőséget! Az álmai otthona már elkészült, Önre vár!
Hívjon most: Nagy Edit – 06 30 6 226 317

Családi ház részletei

Ár: 86 400 000 Ft
Méret: 143 négyzetméter
Azonosító: 11416544
Irodai azonosító: 8585
Cím: Komárom
Telek: 300 négyzetméter
Ingatlan állapota: Átlagos
Jelleg: sorház
Építőanyag: Kérdezzen rá a hirdetőtől »
Fűtés jellege: Egyéb
Kor: Új építésű
Egész szobák: 4

Így keressen budapesti ingatlant négy egyszerű lépésben. Csupán 2 perc, kötelezettségek nélkül!

Szűkítse a budapesti ingatlanok
listáját
Válassza ki a megfelelő
budapesti ingatlant
Írjon a hirdetőnek
Várjon a visszahívásra