Eladó családi ház Komárom 38 000 000 Ft

Leírás

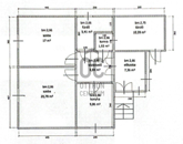
Komárom csendes és barátságos városrészében Szőnyben található, 107 négyzetméteres, tégla építésű, manzárdtetős családi házat szeretném a figyelmébe ajánlani!
Az összközműves, tehermentes, építésügyileg rendezett ingatlan egy 424 m2-es telken helyezkedik el, ami magában foglal egy
80 m2-es lakóingatlant, ( 2 szoba, konyha, fürdőszoba, előszoba, közlekedő, kamra található)
valamint egy másik kisebb 27 m2-es épületet. ( 1 szoba, előszoba, konyha )
A kisebb épület alatt pince található, valamint fúrt kút is rendelkezésre áll.
Mindkét épületben gázkonvektoros fűtés lett bevezetve.
Az ablakok műanyagok, redőnnyel felszereltek.
Az ingatlanban nem laknak, teljesen üres, kifizetés után azonnal költözhető.

Közlekedés szempontjából is kedvező az ingatlan elhelyezkedése, hiszen Komárom központja könnyen megközelíthető autóval és tömegközlekedéssel egyaránt.
A közelben található buszmegálló és vasútállomás lehetővé teszi a gyors és kényelmes utazást a környező településekre és a fővárosba is.
A környék adottságai között említést érdemelnek a közeli boltok, iskolák, óvoda, bölcsőde, gyógyszertár és egészségügyi intézmények, amelyek mind hozzájárulnak a mindennapi élet kényelméhez.
Amennyiben szeretné az ingatlant megtekinteni, kérem keressen a megadott elérhetőségen!

Családi ház részletei

Ár: 38 000 000 Ft
Méret: 107 négyzetméter
Azonosító: 11596097
Telek: 424 négyzetméter
Ingatlan állapota: Átlagos
Jelleg: családi ház
Építőanyag: Kérdezzen rá a hirdetőtől »
Fűtés jellege: Konvektoros
Egész szobák: 3

Egyéb jellemzők

  • Csatorna
  • Garázs
  • Kábel TV
  • Melléképület
  • Parketta
  • Pince
  • Terasz

Így keressen budapesti ingatlant négy egyszerű lépésben. Csupán 2 perc, kötelezettségek nélkül!

Szűkítse a budapesti ingatlanok
listáját
Válassza ki a megfelelő
budapesti ingatlant
Írjon a hirdetőnek
Várjon a visszahívásra