Eladó családi ház Kóka 69 900 000 Ft

Leírás

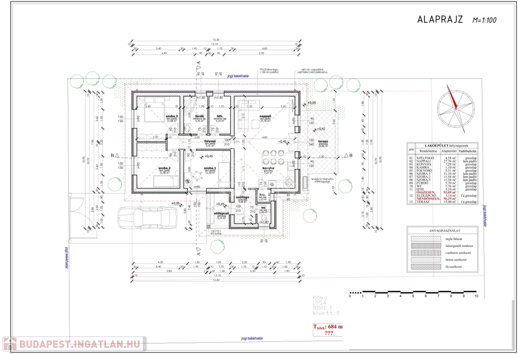
Kókán az Erdősor utca 16- szám alatt , 680 m2-es telken nettó 93,05 m2-es három szoba + amerikai konyhás nappalival rendelkező, energiahatékony önálló családi ház eladó, számos referenciával rendelkező kivitelezőtől!

A tartószerkezeti falak Porotherm P30N+F téglából, betonkoszorúval, fa födémes tetőszerkezettel készülnek. A lábazat 10 cm polisztirol lépésálló, a homlokzatok 15cm-es EPS, a vízszintes födém 30 cm ásványgyapot szigeteléssel lesz ellátva.

Három rétegű üvegekkel szerelt, hat légkamrás műanyag thermo nyílászárók kerülnek beépítésre.

A minimális energiaigényt a megfelelő szigetelésen kívül a megújuló energiát használó gépészet is biztosítja. A fűtést levegő-víz hőszivattyús rendszer fogja végezni.


Burkolatok , szaniterek, belső ajtók, csaptelepek választhatóak a következő értékhatárig:

-Hidegburkolat: 3000 Ft.-/m2
-Melegburkolat: 3000 Ft.-/m2
-Beltéri ajtók: 30.000.Ft.-/db
-Fürdőkád: 40.000.- Ft.-
-Csaptelepek: 15000.- Ft.-/db

Magasabb árú választás is lehetséges, a különbség finanszírozásával.

A kivitelező korábban Sülysápon épített, már birtokbaadott ingatlanjait komoly érdeklődés esetén szívesen megmutatjuk referenciaként.


Csok plusz és Otthon Start igényelhető!

Tervezett átadás 2026 harmadik negyedév vége


INGYENES hitel tanácsadás, CSOK Plusz ügyintézés!
BANKFÜGGETLEN hitelcentrumunk az összes elérhető bank és hitelintézet ajánlatát versenyezteti az Ön kedvéért, ráadásul DÍJMENTESEN.

- Egyedi, bankfiókban nem elérhető kamat- és díjkedvezmények
- Hitelképesség vizsgálat
- Idő, energia és pénz megtakarítás
- Teljes hivatali ügyintézés

Amennyiben hirdetésem felkeltette az érdeklődését vagy egyéb információra van szüksége hívjon bizalommal!

Családi ház részletei

Ár: 69 900 000 Ft
Méret: 93 négyzetméter
Azonosító: 11610173
Irodai azonosító: 392822
Cím: Erdősor utca
Telek: 680 négyzetméter
Ingatlan állapota: Kitűnő
Jelleg: családi ház
Építőanyag: Tégla
Fűtés jellege: Geotermikus
Fűtés módja: Hőszivattyú
Komfort fokozat: Összkomfort
Kor: Új építésű
Szintek száma: Földszintes
Egész szobák: 4

Egyéb jellemzők

  • Csatorna
  • Garázs
  • Pince
  • Terasz

Térkép


Így keressen budapesti ingatlant négy egyszerű lépésben. Csupán 2 perc, kötelezettségek nélkül!

Szűkítse a budapesti ingatlanok
listáját
Válassza ki a megfelelő
budapesti ingatlant
Írjon a hirdetőnek
Várjon a visszahívásra