Eladó családi ház Kistarcsa 156 000 000 Ft

Leírás

Prémium minőség. Új építés. Azonnal költözhető.

Ikerházfél eladó ebből a magas felszereltségű, impozáns megjelenésű, kulcsrakész új építésű otthonból, csendes, családi házas környezetben.

Garázs + több terasz + erkély + 2 teljes értékű lakószint
(nem tetőtér!)
CSOK+ és 3%-os hitel igénybe vehető
Aszfaltozott utca, beépült környék
HÉV, bevásárlás, iskola, óvoda pár percre

Amit ez az otthon tud:

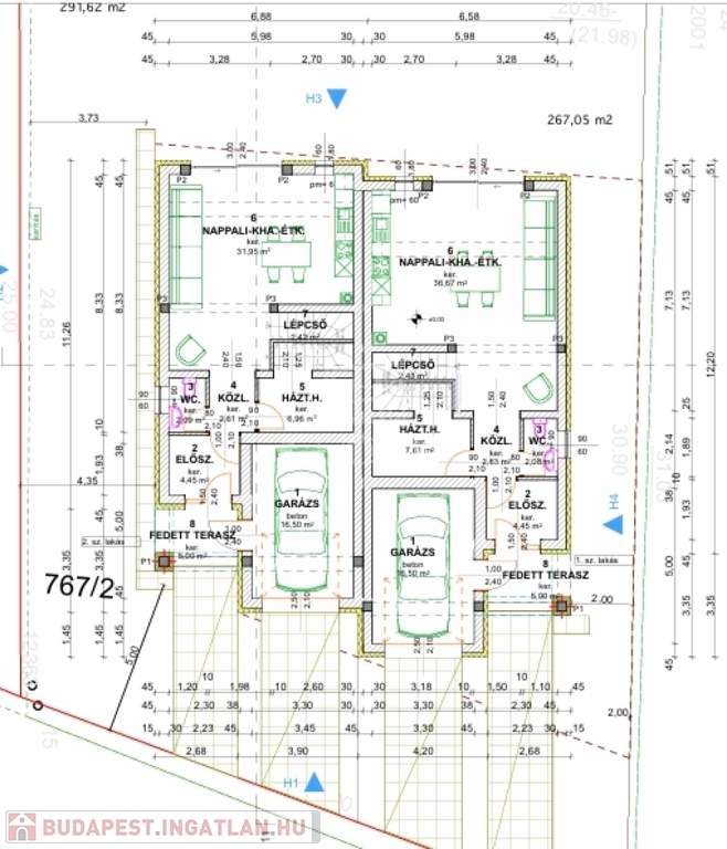
267 m² saját telekrész
Tágas, világos nappali-konyha-étkező egy légtérben
3 hálószoba + gardrób + erkélyek
Garázs + térkövezett beálló
Több terasz a valódi kertkapcsolathoz
Valódi prémium felszereltség:
3 rétegű Schüco nyílászárók, elektromos redőnyökkel
Bosch hőszivattyú, padlófűtés az egész házban (garázsban is!)
4 klíma, H-tarifa, okosvezérlés
Kamerarendszer, elektromos kapu, LED díszvilágítás
Minőségi szerkezet, komoly 15 cm hőszigetelés

Nem várakozás – személyre szabás. A kulcsrakész átadás 2–3 hónap, mert a belső tér a vevő választásai alapján készül el..
Ez az ingatlan nem kompromisszum, hanem hosszú távú, értékálló döntés azoknak, akik minőséget keresnek jó helyen.

Várom a megkeresést – szívesen mutatom személyesen is.

Családi ház részletei

Ár: 156 000 000 Ft
Méret: 155 négyzetméter
Azonosító: 11593414
Irodai azonosító: 391790
Cím: 16 ker. Szabadföldi út 91 - 7percre
Telek: 575 négyzetméter
Ingatlan állapota: Kitűnő
Jelleg: ikerház
Építőanyag: Tégla
Fűtés jellege: Geotermikus
Fűtés módja: Hőszivattyú
Komfort fokozat: Összkomfort
Kor: 1-5 éves
Szintek száma: 1 szint
Egész szobák: 4
Fél szobák: 2

Egyéb jellemzők

  • Csatorna
  • Garázs
  • Pince
  • Terasz

Térkép


Így keressen budapesti ingatlant négy egyszerű lépésben. Csupán 2 perc, kötelezettségek nélkül!

Szűkítse a budapesti ingatlanok
listáját
Válassza ki a megfelelő
budapesti ingatlant
Írjon a hirdetőnek
Várjon a visszahívásra