Eladó családi ház Kiskunlacháza 77 250 000 Ft

Leírás

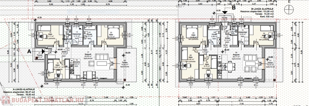
Kiskunlacháza új építésű házai között, közös fal nélküli "ikerház jellegű" " B" belső családi ház eladó.

KIVÁLÓ KIVITELEZŐ, VERSENYKÉPES ÁRON, KIVÁLÓ OTTHONT AJÁNL ÖNNEK! CSOK +, H-TARIFA, HŐSZIVATTYÚ!

Az otthon nettó 103,08 négyzetméteres, ehhez + terasz 16,3 m2 kapcsolódik.
Helyiségei: nappali 28,71 m2, szoba 11,69 m2, szoba 12,09 m2, szoba 9,75 m2, szoba 12,82 m2, konyha 5,52 m2, fürdő szoba 5,89 m2, előtér 6,13 m2, háztartási helyiség 5,22 m2, wc 1,5 m2, közlekedő 3,76 m2, terasz 2,05 m2, terasz 14,30 m2.

A telek ideális 536 négyzetméteres, a szomszédot csak akkor látjuk és halljuk ha mi is szeretnénk, a teraszon zavartalanul pihenhetünk.

Az otthon beton alapra, tégla falazattal, fa födémmel, beton cserép fedéssel épül meg.
Az épület külső nyílászárói (ablakok) műanyag szerkezetűek 6 légkamrás 3 rétegű hőszigetelt üvegezéssel.
A bejárati biztonsági ajtó több ponton záródó.
A homlokzaton 10 cm GRAFITOS Dryvit rendszerű, a födémben 20 cm kőzetgyapot, míg a padlóban 10 cm lépésálló nikecell szigetelés kerül beépítésre.
Fűtése/ hűtése, meleg vízellátása hőszivattyúval (levegő) történik padlófűtéssel. A H tarifa kedvező üzemeltetési költséget biztosít.
Burkolatok választhatóak keretösszegig felette a vevő kompenzál. Szaniterek keretösszegig választhatók.
A kert alap kertrendezéssel kerül átadásra, viacolorozott autóbeállóval és személybejáróval.

A burkolatok, szaniterek választhatóak, a kivitelező igyekszik minden vásárlói igényt kielégíteni.

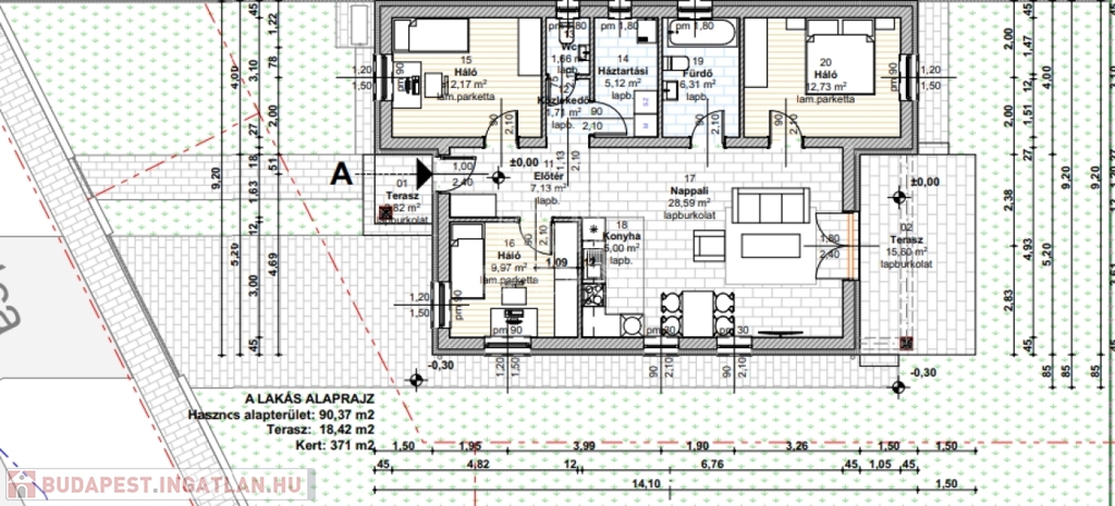
Első "A" családi ház 371 m2 kert, 90,37 m2 lakótér ELKELT
Hátsó "B" családi ház 536 m2 kert,103,08 m2 lakótér ára: 77.250.000 ft

Várom megtisztelő hívását!

FINANSZÍROZÁS:
Nálunk mindent egy helyen intézhet:
- hivatalos ingatlanközvetítés;
- szakszerű jogi képviselet;
- profi CSOK-PLUSZ, és hitelügyintézés: 16 Bank, több mint 100 konstrukció;

A részletes adatvédelmi tájékoztató folyamatosan elérhető a gdn ingatlan adatvédelmi oldalon.

Családi ház részletei

Ár: 77 250 000 Ft
Méret: 103 négyzetméter
Azonosító: 11553619
Irodai azonosító: 385468
Cím: Hársfa utca
Telek: 536 négyzetméter
Ingatlan állapota: Kitűnő
Jelleg: családi ház
Építőanyag: Tégla
Fűtés jellege: Geotermikus
Fűtés módja: Hőszivattyú
Komfort fokozat: Dupla komfort
Kor: Új építésű
Szintek száma: Földszintes
Egész szobák: 5

Egyéb jellemzők

  • Csatorna
  • Garázs
  • Pince
  • Terasz

Térkép


Így keressen budapesti ingatlant négy egyszerű lépésben. Csupán 2 perc, kötelezettségek nélkül!

Szűkítse a budapesti ingatlanok
listáját
Válassza ki a megfelelő
budapesti ingatlant
Írjon a hirdetőnek
Várjon a visszahívásra