Eladó családi ház Kiskunlacháza 71 000 000 Ft

Leírás

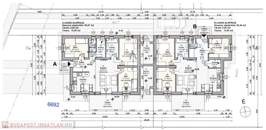
Kiskunlacháza kedvelt részén, központhoz közel kínálunk megvételre, új építésű ikerházakat önálló telekrésszel. Az ikerházfelek, tárolókkal kapcsolódnak egymáshoz.

A telekterület ingatlanonként: 270-560 m2 közötti nagyságúak,
még választhatóak. Összesen 10 db. ingatlan kerül felépítésre.

Az ingatlanok építése már folyamatban van, 2026 tavaszán vehetők birtokba.

A 3 hálószobás ingatlanok nettó alapterülete: 83 nm + tároló: 6,65nm + terasz: 12,00 nm.

A lakás: 71 000 000 Ft.
B lakás: 75 000 000 Ft.

Műszaki paraméterek:

- Porotherm30X-THERM tégla, 15 cm-es dryvit szigeteléssel,
- műanyag fehér nyílászárók,
- Bramac antracit cserép,
- hősszivattyús fűtés, padlófűtéssel, szobákban radiátorral,
- hidegburkolatok 5000 Ft/nm-ig, melegburkolatok 4000 Ft/nm-ig
választhatóak.

Várható átadás: 2026 tavasza.
A kivitelező referencia munkái megtekinthetőek.

Amivel segítjük az Ön ingatlan vásárlását:
- ingyenes hitelügyintézés (CSOK és Babaváró és egyéb hitel
ügyintézése is)
- jogi háttér,
- földhivatali ügyintézés,
- energetikai tanúsítvány ügyintézése,
- a vevő számára ingyenes az ingatlanközvetítés.
Irodánk 30 éves tapasztalattal áll ügyfelei rendelkezésére!

Várom szíves megkeresését!

Családi ház részletei

Ár: 71 000 000 Ft
Méret: 82 négyzetméter
Azonosító: 11479181
Irodai azonosító: 377958
Cím: Lacháza
Telek: 360 négyzetméter
Ingatlan állapota: Átlagos
Jelleg: ikerház
Építőanyag: Tégla
Fűtés jellege: Geotermikus
Fűtés módja: Hőszivattyú
Komfort fokozat: Összkomfort
Kor: Új építésű
Szintek száma: Földszintes
Egész szobák: 4

Egyéb jellemzők

  • Csatorna
  • Garázs
  • Pince
  • Terasz

Térkép


Így keressen budapesti ingatlant négy egyszerű lépésben. Csupán 2 perc, kötelezettségek nélkül!

Szűkítse a budapesti ingatlanok
listáját
Válassza ki a megfelelő
budapesti ingatlant
Írjon a hirdetőnek
Várjon a visszahívásra