Eladó családi ház Keszthely 99 900 000 Ft

Leírás


Keszthelyen új építésű lakóépület eladó A Gold Balaton Home Ingatlaniroda megvételre kínálja a 731200097-es sorszámú KESZTHELY KERTVÁROSI LAKÁST.

Az építtető jó nevű környékbeli cég, akik több éve építenek házakat a legjobb minőségben és modern kivitelezésben. A KÉTLAKÁSOS LAKÓÉPÜLET várható átadása 2026 év vége. Kamattámogatott hitel, illetékmentesség, CSOK igénybe vehető

Egyszintes nívós 95 nm-es LAKÁS 21 nm-es terasszal, tereprendezett, 500 nm-es körbekerített kerttel, TÉRKÖVEZETT DUPLA PARKOLÓHELLYEL eladó.

A Hévízi-tótól 3 000 méterre, a Balatontól 5 000 méterre helyezkedik el.

Műszaki paraméterek:

- 2024-ben épül téglából, minden vonatkozásban: tető, aljzat, homlokzati falak – kiválóan hőszigeteltek

- tégla falazat 20 cm-es hőszigeteléssel, a tető cseréppel fedett

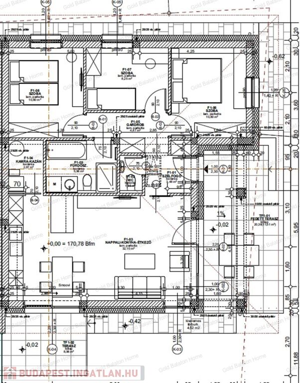
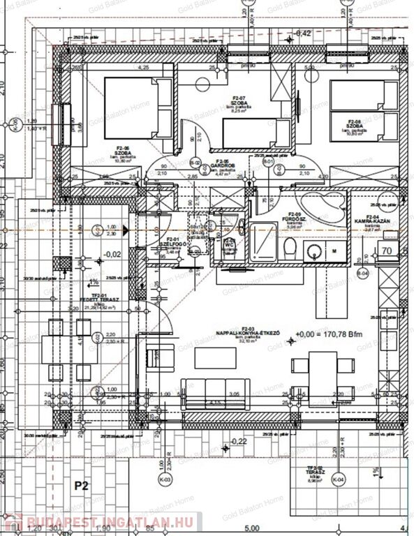
- alapterület: 95 nm, kizárólagos használatú telekrész kb. 500 nm

- földszintes teraszos házrész helyiségei: szélfogó, WC, nappali – konyha – étkező, kamra-kazán, gardrób, 3 szoba, fürdőszoba zuhanyzóval, káddal, mosdóval, WC-vel, tároló - gépészet, részben fedett terasz és nyitott terasz

- műanyag nyílászárók: 3 rétegű hőszigetelt üveggel, távkapcsolóval működtethető alumínium redőny és beépített szúnyogháló

- fűtés: hőszivattyú, padlófűtés, hűtő-fűtő klíma

- a meleg vizet villanybojler szolgáltatja

- 1 db hűtő – fűtő klímaberendezés biztosított

- kedvező fenntartási költségek

- kulcsrakész állapot, tereprendezett, bekerített udvar.

Az ingatlan egyéb jellemzői:

- a hirdetésben szereplő ár egy előre kalkulált ár, amely változhat a tulajdonos igényeitől függően. A minimál stílusú, világos belső terekkel rendelkező otthon új tulajdonosának lehetősége van a céggel való egyeztetés alapján a burkolatok, szaniterek, villamos szerelvények, végleges falszín valamint a beltéri ajtók kiválasztására.

- a külső megjelenésben (tető, homlokzat, színek, stb.) ügyfél általi változtatás nem lehetséges

- van lehetőség ügyfél általi egyedi belső befejezésre is

- az ár kulcsrakész állapotra érvényes, bútorok és lámpatestek nélkül

Az ingatlan akár állandó lakhatásra és nyaralásra is jó választás, de befektetésnek is kitűnő lehetőség!

Amennyiben hirdetésem felkeltette érdeklődését, kérem, keressen bizalommal.

Irodánk szolgáltatásai igény esetén: ügyvéd, energetikai tanúsítvány, hitelügyintézés, értékbecslés, statikus, földmérő, belsőépítész

Biztonság, szakértelem - GOLD BALATON HOME - „Élj ott, ahol mások nyaralnak”

Családi ház részletei

Ár: 99 900 000 Ft
Méret: 95 négyzetméter
Azonosító: 11607146
Irodai azonosító: 731200097
Telek: 500 négyzetméter
Ingatlan állapota: Kitűnő
Jelleg: családi ház
Építőanyag: Tégla
Komfort fokozat: Dupla komfort
Kor: Új építésű
Egész szobák: 1
Fél szobák: 3

Így keressen budapesti ingatlant négy egyszerű lépésben. Csupán 2 perc, kötelezettségek nélkül!

Szűkítse a budapesti ingatlanok
listáját
Válassza ki a megfelelő
budapesti ingatlant
Írjon a hirdetőnek
Várjon a visszahívásra