Eladó családi ház Kecskemét 89 900 000 Ft

Leírás

Otthonok és megoldások!
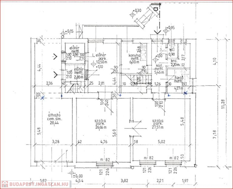
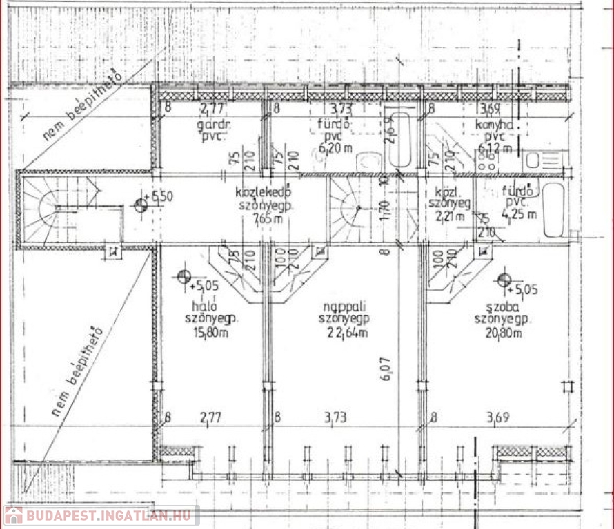
Kecskemét, Máriavárosban, átmenő forgalomtól mentes kisutcában, 316 nm telken, 230 nm lakórésszel rendelkező, többszintes polgári ház eladó. Az ingatlan 1914-ben épült, 50 cm tégla falazattal, 6 szoba, 3 konyha, 4 fürdőszoba, 4 wc, kamrák, galériák kialakítással. A földszint 3,4 m belmagassággal rendelkezik. Az épület alatt száraz, boltíves 80 nm pince található, továbbá tárolók, és egy 30 nm beépített terasz, mely jelenleg műhely jelleggel bír. Tetőszerkezet 1990-es években lett felújítva, fűtése BOSCH gázkazánnal megoldott, melegvízellátás több villanybojlerrel működik, ablakok a földszinten fa, hőszigeteltek. Az ingatlan alakítható, terek összenyithatók, de alkalmas akár 3 generáció együttélésére, vállalkozás kialakítására.

Családi ház részletei

Ár: 89 900 000 Ft
Méret: 230 négyzetméter
Azonosító: 11398547
Irodai azonosító: 369704
Cím: Máriaváros
Telek: 316 négyzetméter
Ingatlan állapota: Átlagos
Jelleg: családi ház
Építőanyag: Tégla
Fűtés jellege: Cirkó
Fűtés módja: Gáz
Komfort fokozat: Összkomfort
Kor: 50 évesnél régebbi
Szintek száma: 1 szint
Egész szobák: 6

Egyéb jellemzők

  • Csatorna
  • Garázs
  • Pince
  • Terasz

Térkép


Így keressen budapesti ingatlant négy egyszerű lépésben. Csupán 2 perc, kötelezettségek nélkül!

Szűkítse a budapesti ingatlanok
listáját
Válassza ki a megfelelő
budapesti ingatlant
Írjon a hirdetőnek
Várjon a visszahívásra