Eladó családi ház Kecskemét 78 900 000 Ft

Leírás

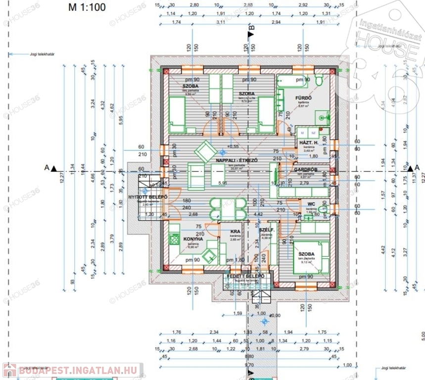
Kecskemét - Felsőszéktón, Nappali + 3 szobás, új családi ház, 836 m2-es telken eladó!

Jellemzői:

- nettó 91 m2
- az ár a kulcsrakész állapotra vonatkozik
- tégla építési mód
- nappali + 3 szoba
- 836 m2 telek
- idei átadás
- padlófűtés
- klíma


Figyelem az adatlap megbízónktól kapott adatok alapján készült, pontosságáért felelősséget nem tudunk vállalni!A tulajdonos kérésére az ingatlan bemutatása egy személyes konzultáció után történik, ahol részletes tájékoztatást kaphat az ingatlan paramétereiről és egyéb kényelmi szolgáltatásairól !
Az iroda legfrissebb, aktuális kínálatát a HOUSE36 saját weboldalán találja!

Családi ház részletei

Ár: 78 900 000 Ft
Méret: 91 négyzetméter
Azonosító: 11566743
Irodai azonosító: 3619292-4859654
Telek: 836 négyzetméter
Ingatlan állapota: Épülő
Jelleg: családi ház
Építőanyag: Tégla
Fűtés jellege: Cirkó
Fűtés módja: Gáz
Kor: Új építésű
Szintek száma: Földszintes
Egész szobák: 4

Térkép


Így keressen budapesti ingatlant négy egyszerű lépésben. Csupán 2 perc, kötelezettségek nélkül!

Szűkítse a budapesti ingatlanok
listáját
Válassza ki a megfelelő
budapesti ingatlant
Írjon a hirdetőnek
Várjon a visszahívásra