Eladó családi ház Kecskemét 72 000 000 Ft

Leírás

Kecskeméthez közel, Helvécián a központtól gyors, új úton, 10 perc alatt megközelíthető részen kínálunk eladó házakat!!!



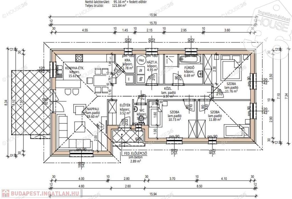
Kiváló elhelyezkedésű, új építésű környéken kínáljuk ezt a90 m2-es, Nappali + 3 szobás prémium kategóriás családi házat, önálló 400 m2-es telken fedett beállóval.
Aszfaltozott út készül hamarosan./18

Egyéb paraméterek:
- nappali + 3 szoba
- nettó 90 m2
- oldalhatáros építési mód
-Wienerberger Porotherm X-Therm tégla (+ 40 % hőtartás)
- 15 cm szigetelés
- 400 m2 -es összközműves önálló telek
- hőszivattyús fűtésrendszer
- padlófűtés
- prémium minőségű műanyag nyílászárók
- szaniterek 1 millió forintig az árban
- hideg - meleg burkolatok 9000.-/ m2
- ár garancia
- idő garancia
- várható átadás szerződéskötéstől számított 8-10hónap
- módosítható tervek

AZ ÁR AZ ÉPÍTÉSI TELEK ÁRÁT IS TARTALMAZZA!
A képek az egyik referenciaházban készültek!!!!

CSAK NÁLUNK KERESSE!!!


RÉGI MEGY, ÚJ JÖN? KERESSEN BIZALOMMAL!! SEGÍTEK MEGOLDANI!!

Figyelem, az adatlap megbízóinktól kapott adatok alapján készültek, pontosságáért felelősséget nem tudunk vállalni!
A HOUSE36 kínálatában található összes ingatlannal kapcsolatban tudok felvilágosítást nyújtani.
Szolgáltatásaink ügyfeleink részére díjmentesek!
Az iroda legfrissebb, aktuális kínálatát a HOUSE36 saját weboldalán találja!

Családi ház részletei

Ár: 72 000 000 Ft
Méret: 90 négyzetméter
Azonosító: 11566739
Irodai azonosító: 3619807-4939319
Telek: 400 négyzetméter
Ingatlan állapota: Épülő
Jelleg: családi ház
Építőanyag: Tégla
Fűtés jellege: Cirkó
Fűtés módja: Gáz
Kor: Új építésű
Szintek száma: Földszintes
Egész szobák: 4

Térkép


Így keressen budapesti ingatlant négy egyszerű lépésben. Csupán 2 perc, kötelezettségek nélkül!

Szűkítse a budapesti ingatlanok
listáját
Válassza ki a megfelelő
budapesti ingatlant
Írjon a hirdetőnek
Várjon a visszahívásra