Eladó családi ház Kecskemét 72 000 000 Ft

Leírás

CSAK NÁLUNK KERESSE!!!
Kecskeméthez közel, a központtól gyors, új úton, 10 perc alatt megközelíthető részen kínálunk eladó házakat!!!

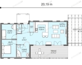
Kiváló elhelyezkedésű, új építésű környéken kínáljuk ezt a 80 m2-es, Nappali + 2 szobás prémium kategóriás családi házat, önálló 400 m2-es telken.
Aszfaltozott út készül hamarosan.


Egyéb paraméterek:

Wienerberger Porotherm X-Therm tégla (+ 40 % hőtartás)
15 cm szigetelés
400 m2 -es összközműves önálló telek
hőszivattyús fűtésrendszer
padlófűtés
prémium minőségű műanyag nyílászárók
elektromos alumínium redőnyök
riasztó
szaniterek 1 millió forintig az árban
hideg - meleg burkolatok 8500.-/ m2
ár garancia
idő garancia
várható átadás szerdéskötéstől számított 10hónap

A telekre bruttó 240 m2 -es ház is választható, ármódosítással.

AZ ÁR AZ ÉPÍTÉSI TELEK ÁRÁT IS TARTALMAZZA!


Az adatok tájékoztató jellegűek!
FIGYELEM! Az adatok Megbízónktól kapott információk alapján készültek, pontosságukért fele
Az iroda legfrissebb, aktuális kínálatát a HOUSE36 saját weboldalán találja.

Családi ház részletei

Ár: 72 000 000 Ft
Méret: 80 négyzetméter
Azonosító: 11594691
Irodai azonosító: 3617224-4557615
Cím: 80 nm-es ház eladó Kecskemét
Telek: 400 négyzetméter
Ingatlan állapota: Épülő
Jelleg: családi ház
Építőanyag: Tégla
Fűtés jellege: Villany
Fűtés módja: Hőszivattyú
Komfort fokozat: Összkomfort
Kor: Új építésű
Szintek száma: Földszintes
Egész szobák: 3

Térkép


Így keressen budapesti ingatlant négy egyszerű lépésben. Csupán 2 perc, kötelezettségek nélkül!

Szűkítse a budapesti ingatlanok
listáját
Válassza ki a megfelelő
budapesti ingatlant
Írjon a hirdetőnek
Várjon a visszahívásra