Eladó családi ház Kecskemét 150 000 000 Ft

Leírás

Kecskemét kertvárosának is nevezhető Kadafalván gyönyörű új építésű ház ELADÓ!
Azonnali költözés!
​Itt minden megtalálható ami az ön kényelmét szolgálja.

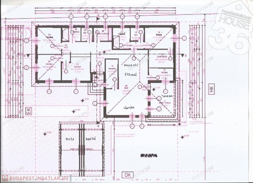
- 167,9 m2 lakótér
- 773 m2 telek
- 4 szoba
- nagy nappali
- konyha étkezővel
- 2 fürdőszoba
- 2 WC
- gardrób
- dolgozó szoba
- 16,4 m2 terasz
- H tarifa
- Elektromos, távirányítóval vezérelt tolókapu
- Kamerarendszer
- Riasztórendszer kiépítés
- 5 KW napelem rendszer ,Wi-Fivel telefonról vezérelhető, kezelhető inverterrel
- hőszivattyú
- mennyezethűtés
- gépesített, beépített konyha
- elektromos redőnyök szúnyoghálóval
- 2 autó tárolására alkalmas beálló
- épített terasz Wellis jakuzzival
- fúrt kút
- locsoló rendszer
- térkövezett bejáró.

Nézzük meg akár hétvégén is.

A HOUSE36 kínálatában lévő összes ingatlannal kapcsolatban tudok felvilágosítást nyújtani.
Szolgáltatásaink kereső ügyfeleink részére ingyenesek.
Figyelem az adatlap megbízónktól kapott adatok alapján készült pontosságáért felelősséget vállalni nem tudunk.

150000000 Ft
Az iroda legfrissebb, aktuális kínálatát a HOUSE36 saját weboldalán találja!

Családi ház részletei

Ár: 150 000 000 Ft
Méret: 167 négyzetméter
Azonosító: 11607962
Irodai azonosító: 3621393-5182538
Telek: 773 négyzetméter
Ingatlan állapota: Épülő
Jelleg: családi ház
Építőanyag: Könnyűszerkezetes
Fűtés jellege: Villany
Fűtés módja: Hőszivattyú
Komfort fokozat: Dupla komfort
Kor: Új építésű
Szintek száma: Földszintes
Egész szobák: 4

Egyéb jellemzők

  • Garázs

Térkép


Így keressen budapesti ingatlant négy egyszerű lépésben. Csupán 2 perc, kötelezettségek nélkül!

Szűkítse a budapesti ingatlanok
listáját
Válassza ki a megfelelő
budapesti ingatlant
Írjon a hirdetőnek
Várjon a visszahívásra