Eladó családi ház Kecskemét 118 900 000 Ft

Leírás

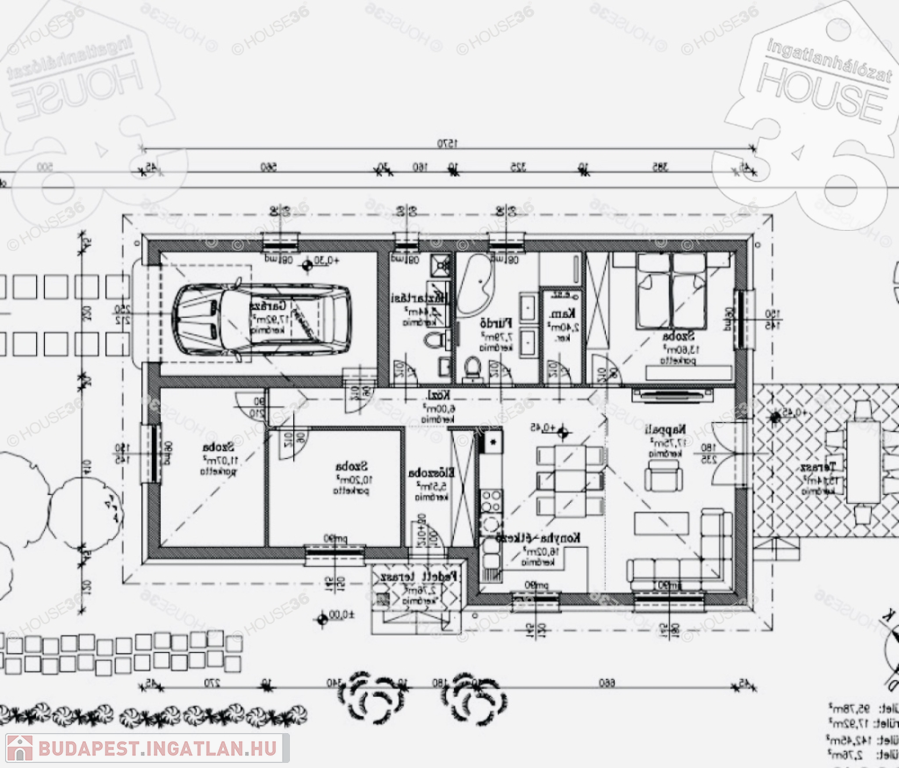
Kecskeméttől 4 percre BALLÓSZÖGBEN, 114 m2-es, nappali + 3 szobás CSALÁDI HÁZ, garázzsal eladó!

Jellemzői:

-2025. decemberi átadás!
-114m2
-nappali + 3 szoba
-BOSCH 3000 kazán
-2 klíma
-15 m2 terasz
-860m2 telek
-18 m2 garázs
-extra műszaki tartalom
-műanyag nyílászárók redőnnyel



A tulajdonos kérésére az ingatlan bemutatása egy személyes konzultáció után történik, ahol részletes tájékoztatást kaphat az ingatlan paramétereiről és egyéb kényelmi szolgáltatásairól !Figyelem az adatlap megbízónktól kapott adatok alapján készült, pontosságáért felelősséget nem tudunk vállalni!
Az iroda legfrissebb, aktuális kínálatát a HOUSE36 saját weboldalán találja!

Családi ház részletei

Ár: 118 900 000 Ft
Méret: 114 négyzetméter
Azonosító: 11518572
Irodai azonosító: 3619711-4919543
Telek: 860 négyzetméter
Ingatlan állapota: Épülő
Jelleg: családi ház
Építőanyag: Tégla
Fűtés jellege: Cirkó
Fűtés módja: Gáz
Kor: Új építésű
Szintek száma: Földszintes
Egész szobák: 4

Térkép


Így keressen budapesti ingatlant négy egyszerű lépésben. Csupán 2 perc, kötelezettségek nélkül!

Szűkítse a budapesti ingatlanok
listáját
Válassza ki a megfelelő
budapesti ingatlant
Írjon a hirdetőnek
Várjon a visszahívásra