Eladó családi ház Kakucs 96 990 000 Ft

Leírás

Megvételre kínálunk Pest vármegyében, az M5 autópálya vonzásában, Kakucs település jó megközelítésű de mégis nyugodt környezetében, egy nettó 90,31 nm-es, Nappali+ 3 hálószobás ikerházat.
Az ingatlan 450nm-es ideális méretű fenntartható telken 2022-ben épült B30-‎Porotherm téglából,10cm-es homlokzati szigeteléssel, 3 rétegű nyílászárókkal, és minőségi cseréptetővel.
Az épület a hátsó telken lévő szomszédos házzal, egy félig fedett tárolón keresztül (15m-es hosszban) van összekapcsolva és mindkét telekrész külön helyrajzi számon szerepel.

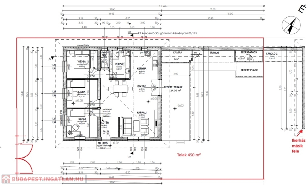
Helyiségek:
➡ Nappali: 21,53 m² | Étkező: 14,76 m² | Konyha: 9,75 m²
➡ 3 különálló hálószoba: egyenként 10,55 m²
➡ Fürdő: 6,62 m² | Előtér: 4,29 m² | WC: 1,71 m²
➡ Kültér: 24,36 m²-es hatalmas UV szűrős polikarbonáttal fedett terasz, 6 m² szigetelt kamra és 4,5 m² szerszámos.

A 450 nm-es telek minden szeglete gondosan tervezett és teljesen kiépített. A kertben magaságyások és üvegház, található.
A 2350 liter vízgyűjtőkapacitás is (az 1000 literes tartály szivattyúval ellátott) A tartályokban felgyülemlett plusz vízmennyiség elvezetése szikkasztó blokkokkal megoldott. A gépkocsik számára egy 48 m²-es murvázott beálló biztosított két kocsi részére.

Hőszigetelés:

-B30-‎Porotherm téglából+10cm-es homlokzati szigetelés,
-10 cm lépésálló lábazati- és 30 cm-es ásványgyapot födémszigetelés,
-Prémium nyílászárók 3 rétegű üvegezéssel ellátott, 6 kamrás profilok a kiváló hang - és hővédelemért,
-Gépészet: Ariston kondenzációs kazán (közös tereken padlófűtés, hálószobákban radiátorok, Wifi-s hővisszanyerős szellőztető rendszer és A++ Fisher hűtő-fűtő klíma,
-A kamrában 3 fázisú elektromos kiállás került kialakításra, lehetőség biztosít napelemes rendszer inverterének fogadására.


A modern otthoni infrastruktúrát erősíti, hogy minden szobában és a nappaliban is Ethernet- és koaxiális csatlakozások állnak rendelkezésre. A biztonságról és a kényelemről Hikvision kamerás kaputelefon,elektromos kapu távnyitással, rádióvezérlésű gépkocsi-kapunyitó rendszerrel, további információért valamint rugalmas megtekintésért hívjon bizalommal a hét minden napján.

INGYENES hitel tanácsadás, CSOK ügyintézés!
BANKFÜGGETLEN hitelcentrumunk minden elérhető bank és hitelintézet ajánlatát versenyezteti az Ön kedvéért, ráadásul DÍJMENTESEN.

Családi ház részletei

Ár: 96 990 000 Ft
Méret: 90 négyzetméter
Azonosító: 11602784
Irodai azonosító: 393152
Cím: Központ vonzásában Nappali+3 hálós!
Telek: 450 négyzetméter
Ingatlan állapota: Kitűnő
Jelleg: ikerház
Építőanyag: Tégla
Fűtés jellege: Cirkó
Fűtés módja: Gáz
Komfort fokozat: Összkomfort
Kor: 1-5 éves
Szintek száma: Földszintes
Egész szobák: 4

Egyéb jellemzők

  • Csatorna
  • Garázs
  • Pince
  • Terasz

Térkép


Így keressen budapesti ingatlant négy egyszerű lépésben. Csupán 2 perc, kötelezettségek nélkül!

Szűkítse a budapesti ingatlanok
listáját
Válassza ki a megfelelő
budapesti ingatlant
Írjon a hirdetőnek
Várjon a visszahívásra