Eladó családi ház Kakucs 89 900 000 Ft

Leírás

Eladó kulcsra kész ingatlanok Pest Vármegyében, Kakucs községben!

CSOK PLUSZRA ALKALMAS!! 10 % önerővel foglalható!

Megbízható kivitelezés!
Kakucson is több referenciával rendelkező vállalkozó!

A települést Inárcs és Újhartyán öleli körül.
Budapest 40 km, Kecskeméttől 50 km még Dabastól 10 km-re fekszik az M 5-ös autópálya mellett.
Közlekedés szempontjából kiváló gyorsan és könnyedén el lehet jutni a fővárosban vagy nagyobb településekre, mint pl. menetrendszerinti autóbusszal, vonattal (Inárcs-Kakucs vasútállomás), kocsival az M 5-ös autópályán.

Az ide látogatók- költözök egy tiszta, rendezett és barátságos települést ismerhet meg.

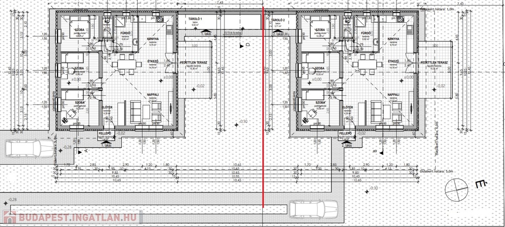
Kakucs új negyedében került megépítésre a tároló kapcsolatos családi házak.
Az ingatlanok műszaki tartalma röviden:
- Főfalak: Porotherm Klíma NF 30 téglából épült (Klíma tégla termékcsalád kiemelkedően magas hőszigetelő)
- 10 cm vastag hőszigetelés
- fa födém 20 cm-es kőzetgyapot szigetelés- páramentesítő fólia
- Sátortetős beton cserépfedéssel, antracit szürke színben
- Nyílászárok: műanyag fehér színben

Az ingatlan összközműves!
Fűtés:
- Kondenzációs gázkazán
- Padlófűtés + radiátor rendszer
Épület tervezett energetikai besorolása az előzetesen elkészített hőtechnikai számítás szerin „AA”.
Ez az energetikai besorolás eléréséhez az építtető Hűtő- Fűtő klímákat telepít.
Minden ingatlan 90.39 nm + 15.36 nm terasz + tároló
Elosztásuk: előszoba, nappali+ konyha, 3 db. szoba, vendég Wc., fürdőszoba, hátsó terasz, tároló.
Az ingatlanokat nyitott tároló köti össze.
Körbekerített telek 400 nm.

Közelben: pár perc séta távolságra a Kökörcsin Napköziotthonos óvoda, iskola, gyógyszertár, gyerek- felnőtt orvosi rendelő, fogászat, posta, Polgármesteri hivatal, bevásárlási lehetőség, szépségszalon stb.

Bátran ajánlom mindazoknak, akiknek fontos a tiszta levegő, nyugodt környék és a város közelsége!


Amennyiben felkeltette érdeklődését az ingatlan várom szeretettel hívását időpont egyeztetésre!

Tőlünk vásárolt ÜGYFELEK számos kedvezményt vehetnek igénybe min pl. független- ingyenes hitelügyintézés és tanácsadás, MÖMAX áruházban vásárlás esetén 10 % , DIEGO-ba vásárlás esetén 10%, Vét-Gát vagyonvédelem- Szolgálat ingyenes bekötés, Sentinel- Max védelmi szolgálat ingyenes bekötés, Asztalos belső építés minden megrendelésből 10%, Enterprise Development online marketing és honlap készítés 10%.

Családi ház részletei

Ár: 89 900 000 Ft
Méret: 91 négyzetméter
Azonosító: 11314650
Telek: 400 négyzetméter
Ingatlan állapota: Kitűnő
Jelleg: családi ház
Építőanyag: Tégla
Fűtés jellege: Cirkó
Fűtés módja: Gáz
Komfort fokozat: Összkomfort
Kor: Új építésű
Elhelyezkedés: Udvari
Szintek száma: Földszintes
Egész szobák: 4
Nappalik: 1

Egyéb jellemzők

  • Beépíthető tetőtér
  • Csatorna
  • Garázs
  • Kábel TV
  • Melléképület
  • Padlás
  • Parketta
  • Pince
  • Terasz
  • Medence

Térkép


Így keressen budapesti ingatlant négy egyszerű lépésben. Csupán 2 perc, kötelezettségek nélkül!

Szűkítse a budapesti ingatlanok
listáját
Válassza ki a megfelelő
budapesti ingatlant
Írjon a hirdetőnek
Várjon a visszahívásra