Eladó családi ház Jászapáti 49 900 000 Ft

Leírás

2 GENERÁCIÓS CSALÁDI HÁZ, CSENDES HELYEN!

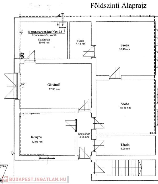
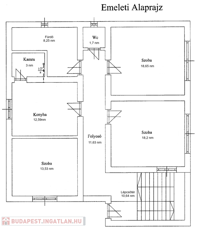
Megvételre kínálok Jászapáti csendes részén, 517 nm-es telken fekvő, 2 szintes, nettó 163,12 nm, bruttó: 200,51nm 1982-ben épült, tégla falazatú, hatalmas, tényleges 2 külön bejárattal ellátott, külön lakórészekkel rendelkező, de belülről átjárható családi házat.

Az épületet fűtését gáz, kombi cirkó biztosítja padlófűtés segítségével, valamint 1 db hűtő-fűtő klíma is rendelkezésre áll, a melegvízért szintén a kombi felel.

2024-ben belülről teljesen megújult az épület:
- fali padlóburkolatok cseréje
- víz-villany-gáz-csatornahálózat csere
- padlófűtés kialakítása
- új kazán
- nyílászáró csere
- fürdők kialakítása
- helyiségek újra gondolása
- tényleges 2 lakrész kialakítása
- klíma telepítése
- elektromos kapu telepítése

Egy jármű garázsban, 4 további pedig az urvaron fér el, valamint egy 20 nm-es kis házikó is része a kinti térnek, mely pakolásra alkalmas.

Infrastruktúrája jónak mondható, 550-1300 méteren belül elérhető buszmegálló, bolt, iskola, óvoda, bölcsőde.

A szomszédok kedvesek és barátságosak, mellyel egy igazán élhető lakóközösséget alkotnak.

AZ INGATLAN PER, TEHER és IGÉNYMENTES!

INGYENES hitel tanácsadás!
CSOK Plusz ügyintézés!

BANKFÜGGETLEN hitelcentrumunk minden elérhető bank és hitelintézet ajánlatát versenyezteti az Ön kedvéért, ráadásul DÍJMENTESEN.

Önnek nincs más dolga, mint elbeszélgetni munkatársunkkal, aki a hallott információk alapján versenyre hívja a bankokat, hogy Ön hosszú távon is a legjobb konstrukciót kaphassa. A legjobb ajánlatokból végül Ön választhatja ki a nyertest.
Munkatársaink sokéves szakmai tapasztalattal várják Önt, előre egyeztetve akár a normál munkaidő után is.

Amennyiben a hirdetés felkeltette érdeklődését, várom hívását, akár hétvégén is! S.S.

Családi ház részletei

Ár: 49 900 000 Ft
Méret: 163 négyzetméter
Azonosító: 11565905
Irodai azonosító: 387397
Cím: Csendes utcában
Telek: 517 négyzetméter
Ingatlan állapota: Felújított
Jelleg: családi ház
Építőanyag: Tégla
Fűtés jellege: Cirkó
Fűtés módja: Gáz
Komfort fokozat: Dupla komfort
Kor: 21-50 éves
Szintek száma: 2 szint
Egész szobák: 5

Egyéb jellemzők

  • Csatorna
  • Garázs
  • Pince
  • Terasz

Térkép


Így keressen budapesti ingatlant négy egyszerű lépésben. Csupán 2 perc, kötelezettségek nélkül!

Szűkítse a budapesti ingatlanok
listáját
Válassza ki a megfelelő
budapesti ingatlant
Írjon a hirdetőnek
Várjon a visszahívásra