Eladó családi ház Hévíz 160 000 000 Ft

Leírás


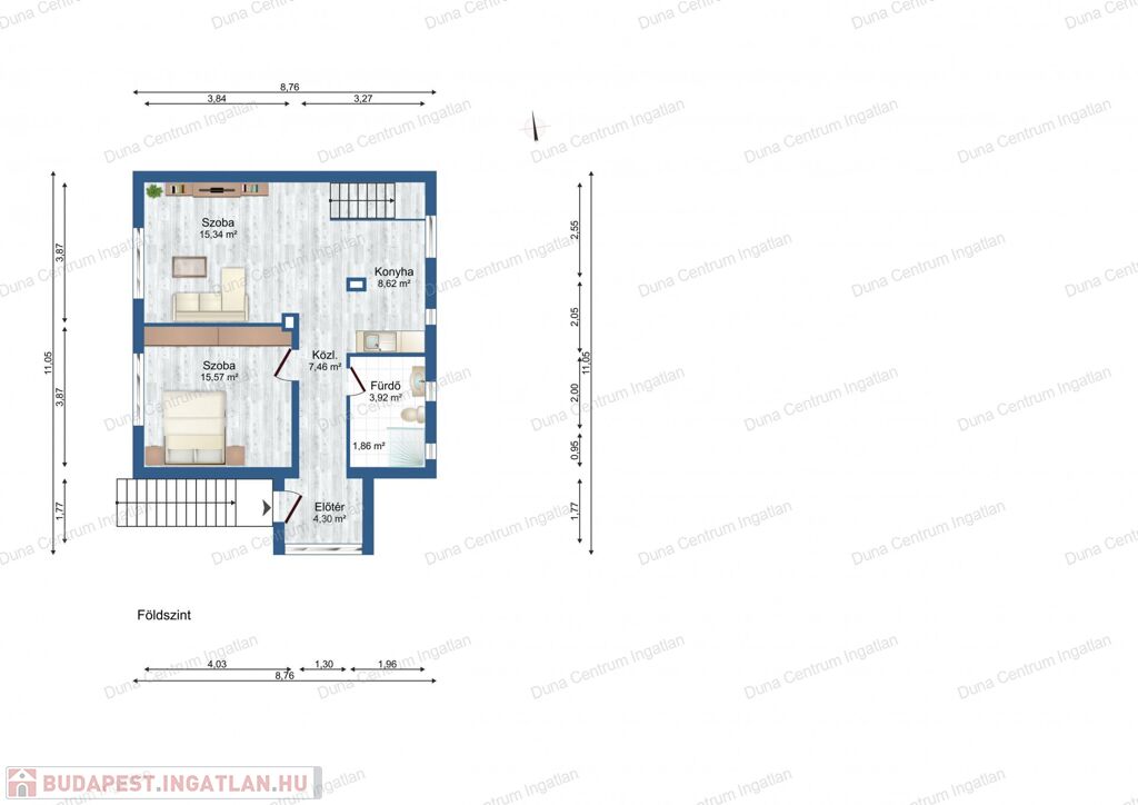
Hévízen közel a Tófürdőhöz modern, elegáns családi ház rendezett udvarral, medencével eladó. Az ingatlan földszinti részén tágas konyha, kamra, kettő szoba, fürdőszoba, míg az emeleti részen amerikai konyhás nappali, szoba, fürdőszoba kapott helyet. A két szint külön bejárattal is megközelíthető, így lehetőség van két generáció együttélésére is. A fűtés gáz cirkó kazánnal megoldott. Az udvarban garázs, nagy tároló található. Az ár tartalmazza a teljes berendezést !

Családi ház részletei

Ár: 160 000 000 Ft
Méret: 160 négyzetméter
Azonosító: 11382929
Irodai azonosító: 210400747
Telek: 761 négyzetméter
Ingatlan állapota: Átlagos
Jelleg: családi ház
Építőanyag: Tégla
Fűtés jellege: Cirkó
Komfort fokozat: Összkomfort
Egész szobák: 4

Így keressen budapesti ingatlant négy egyszerű lépésben. Csupán 2 perc, kötelezettségek nélkül!

Szűkítse a budapesti ingatlanok
listáját
Válassza ki a megfelelő
budapesti ingatlant
Írjon a hirdetőnek
Várjon a visszahívásra