Eladó családi ház Hernád 89 000 000 Ft

Leírás

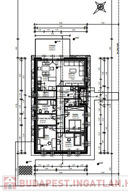
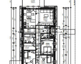
Hernád központjához közel, egy 750 m²-es saroktelken kínálok eladásra egy 110 m²-es, új építésű, önálló családi házat. Az ingatlan 20% önerővel már lefoglalható. A ház vasalt beton alapra épül, Porotherm 30 X-therm Rapid téglából, Bramac cserépfedéssel. A homlokzat 15 cm Dryvit hőszigeteléssel és nemesvakolattal készül, a nyílászárók háromrétegű műanyag ablakok kő párkányokkal.
A vételár a teljes kulcsrakész állapotot tartalmazza, beleértve a burkolatokat is 8.000 Ft/m² értékhatárig. A közművek közül a villany, a víz és a csatorna kerül bevezetésre. A ház három szobából, egy tágas nappaliból, fürdőszobából WC-vel, valamint egy különálló mellékhelyiségből áll. A fűtés korszerű elektromos rendszerrel és padlófűtéssel lesz megoldva, amelyet egy 8 kW-os napelemrendszer támogat; ennek köszönhetően a rezsiköltség minimális.
Az ingatlan környezete rendezett és kiváló elhelyezkedésének köszönhetően a mindennapi élethez szükséges létesítmények – iskola, óvoda, gyógyszertár, orvosi rendelő, üzletek, buszmegálló és vasútállomás – gyalogosan vagy autóval 2–15 percen belül elérhetők.
Ne hagyja ki ezt a remek lehetőséget, hiszen álmai otthona csak egy telefonhívásra van! Amennyiben az ingatlan a leírás és a fényképek alapján felkeltette érdeklődését, hívjon bizalommal további információért:Gáspár Kata +36 20 400 4035




 

 




 

Családi ház részletei

Ár: 89 000 000 Ft
Méret: 110 négyzetméter
Azonosító: 11593173
Telek: 750 négyzetméter
Ingatlan állapota: Kitűnő
Jelleg: családi ház
Építőanyag: Kérdezzen rá a hirdetőtől »
Komfort fokozat: Összkomfort
Egész szobák: 3

Egyéb jellemzők

  • Csatorna
  • Garázs
  • Kábel TV
  • Melléképület
  • Parketta
  • Pince
  • Terasz

Így keressen budapesti ingatlant négy egyszerű lépésben. Csupán 2 perc, kötelezettségek nélkül!

Szűkítse a budapesti ingatlanok
listáját
Válassza ki a megfelelő
budapesti ingatlant
Írjon a hirdetőnek
Várjon a visszahívásra