Eladó családi ház Héreg 95 000 000 Ft

Leírás

Többfunkciós birtok a Gerecse lábánál – Gazdaság, vendégház vagy családi fészek Héregen
165 m2 4+1 szobás családi ház eladó 3100 m2 telekkel - igazi ritkaság a piacon!

Összefoglaló:

Eladó egy rendkívüli adottságokkal bíró, akár többgenerációs ingatlanegyüttes Héreg szívében. A 3100 m² telek, a frissen modernizált főépület és a melléképületként épített kisebb parasztház számtalan lehetőséget rejt: legyen szó önellátó gazdálkodásról, falusi turizmusról vagy vállalkozásról.

Miért érdemes ezt választania? – Értékek és előnyök:

• Hatalmas, élettel teli telek (3000+ m²): A kert végében saját nádas és tó található, 24 termő gyümölcsfával és kúttal az önellátáshoz.

• Frissen modernizált főépület (165 m²): 2024-ben megújult villanyhálózat és 2025-ben kialakított tágas, amerikai konyhás nappali várja.

• Kiváló szerkezeti állapot: A tető 2020-ban teljes felújításon esett át, a falak stabilak, a ház azonnal lakható.

• Kettős fűtési rendszer: Gázkazán a kényelemért + 2023-as építésű, hangulatos cserépkályha a nappaliban a rezsicsökkentésért.

• Plusz egy "Parasztház": A telken álló felújítandó állapotú kisház külön lakrészként vagy vendégházként is hasznosítható.

• Központi, mégis csendes lokáció: Boltok, iskola, orvos karnyújtásnyira, miközben a Gerecse túraútvonalai a szomszédban indulnak.

Ingatlan struktúra:

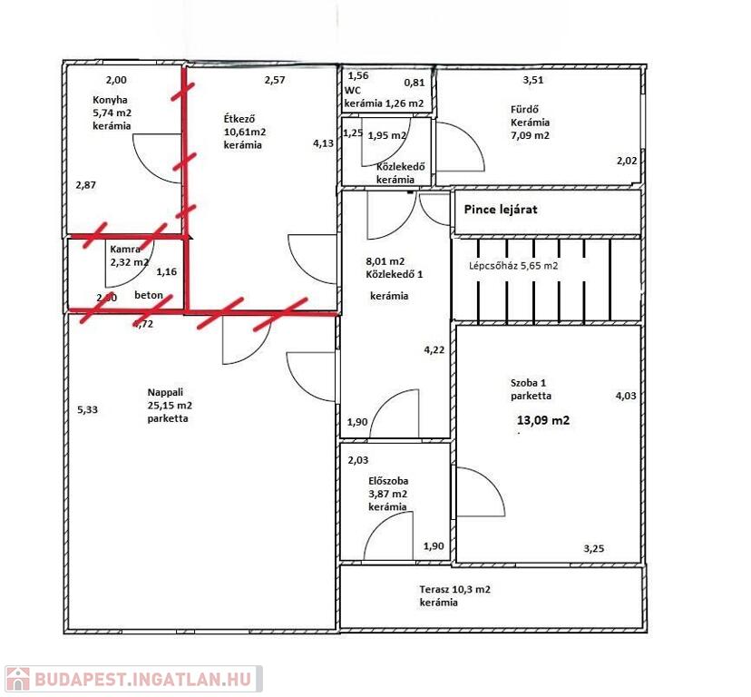
1. Főépület (Pince + Földszint + Tetőtér):
Az 1987-es építésű tégla ház szintenként átgondolt elosztású. A földszinten a terek egybenyitásával modern közösségi tér jött létre. A tetőtér beépítése révén akár két generáció szeparált együttélése is megoldott. Alacsony fenntartási költség jellemzi.

2. Melléképületek és Tárolás:
• Két garázs: Egy az utcafrontról, egy az udvarról nyílik – ideális műhelynek is.
• Gazdasági épületek: Állattartásra, raktározásra vagy kisüzemi tevékenységre alkalmas, felújítandó helyiségek.

Lokáció – Ahol megáll az idő:

Héreg egy zsákfalu biztonságát és nyugalmát nyújtja, miközben Budapest (54 km) és Tatabánya (20 km) is gyorsan elérhető. Szombatonként helyi termelői piac, tiszta levegő és összetartó közösség várja az ideköltözőket.

Infrastruktúra:

2 bolt, óvoda, iskola, orvosi rendelő, vendéglő, sportpálya, mobilposta, fitneszpark is szolgálja az itt lakók kényelmét.

Ez az ingatlan a "lehetőségek tárháza". Itt nem csak egy értékálló befektetést, de nyugodt életet biztosíthat családjának egy kiemelkedően szép környezetben!

Ha felkeltette érdeklődését, hívjon bizalommal!

Irodánk bankfüggetlen és ingyenes hitelügyintézéssel támogatja az Önök vásárlását!

Komárné Koszper Helga
+36 30 813 52 19

Családi ház részletei

Ár: 95 000 000 Ft
Méret: 165 négyzetméter
Azonosító: 11606672
Irodai azonosító: 9757
Cím: Héreg
Telek: 3100 négyzetméter
Ingatlan állapota:
Jelleg: családi ház
Építőanyag: Kérdezzen rá a hirdetőtől »
Fűtés jellege: Cirkó
Egész szobák: 4
Fél szobák: 1

Így keressen budapesti ingatlant négy egyszerű lépésben. Csupán 2 perc, kötelezettségek nélkül!

Szűkítse a budapesti ingatlanok
listáját
Válassza ki a megfelelő
budapesti ingatlant
Írjon a hirdetőnek
Várjon a visszahívásra