Eladó családi ház Halásztelek 131 990 000 Ft

Leírás

Halásztelken, új építésű környezetben eladó prémium kategóriás családi ház, amely magas minőségű anyagokból készül.

Kiváló elhelyezkedés: közel iskola, óvoda, bevásárlóközpontok, és Budapest mindössze 20-25 perc autóval.

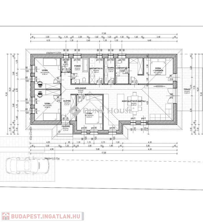
A ház nettó 118 nm-es, 3+1 szobás kialakítással, amerikai konyhás nappalival és nagy terasszal rendelkezik.Az egyik szoba külön fürdőszobával és gardróbbal van felszerelve, a házban megtalálható további fürdőszoba és wc.

Kialakítása:szoba + gardrób + fürdőszoba, 3 szoba, előtér, nappali+étkező, kamra, háztartási helyiség, fürdőszoba, wc, terasz, fellépő

Műszaki paraméterek:Az ingatlan 30 cm vastag porotherm téglafalazatú, 15 cm-es polisztirol szigeteléssel és 30 cm-es födém szigeteléssel készül.Rehau nyílászárók kerülnek beépítésre.A fűtésről kondenzációs kombinált cirkó és padlófűtés gondoskodik, emellett hűtő-fűtő klímával is felszerelt.

Választhatók: 9000 Ft-ig / négyzetméter hideg és meleg burkolat. Beltéri ajtók 90.000 Ft-ig / db Szaniterek: zuhanykabin(választható kád helyett) 100.000 Ft-ig, kézmosók 30.000 Ft/db, kád 100.000 Ft-ig csaptelepek /kézmosó, zuhany, kádtöltő 30.000 Ft-ig . Wc csésze:15.000.- Ft-ig Wc tartály: 15.000.- Ft-ig Wc ülőke : 3500.-Ft-ig

A projekt igény szerint módosítható egyedi elképzelések szerint!

Bármilyen kérdés, megtekintési szándék esetén keressen bizalommal!

Családi ház részletei

Ár: 131 990 000 Ft
Méret: 118 négyzetméter
Azonosító: 11546814
Irodai azonosító: HZ058929-4975239
Cím: 118 nm-es ház eladó Halásztelek
Telek: 1003 négyzetméter
Ingatlan állapota: Épülő
Jelleg: családi ház
Építőanyag: Tégla
Fűtés jellege: Cirkó
Fűtés módja: Gáz
Kor: Új építésű
Szintek száma: Földszintes
Egész szobák: 4

Térkép


Így keressen budapesti ingatlant négy egyszerű lépésben. Csupán 2 perc, kötelezettségek nélkül!

Szűkítse a budapesti ingatlanok
listáját
Válassza ki a megfelelő
budapesti ingatlant
Írjon a hirdetőnek
Várjon a visszahívásra