Eladó családi ház Hajdúsámson 63 900 000 Ft

Leírás

Sámsonkertben építés alatt – új, tágas 4 szobás ház várja Önt! AKCIÓS áron január 15-ig!

Most egy igazán különleges lehetőséget kínálunk számodra Sámsonkert városrészben. Ez az új építésű ház nem csupán egy ingatlan, hanem egy életstílus, amely tökéletesen illeszkedik a modern fiatalok igényeihez. Az ingatlan alapterülete 80 négyzetméter, amelyben négy tágas szoba és két fürdőszoba található. A terasz mérete 12,47 négyzetméter, ahol a reggeli kávédat vagy a barátaiddal eltöltött estéidet élvezheted a friss levegőn. A házban, a megújuló hőszivattyús fűtési rendszernek köszönhetően nemcsak gazdaságos, hanem környezetbarát megoldást is kínál. A klímaberendezés pedig biztosítja, hogy a nyári hónapokban is kellemes hőmérsékletet varázsolhass otthonodba. Az ingatlan környezete csendes és biztonságos, ideális helyszín a nyugodt hétköznapokhoz és a baráti összejövetelekhez. A környék adottságai lenyűgözőek: a közlekedési lehetőségek kiválóak, hiszen autóval könnyen megközelíthető a város központja, ahol számos bolt, étterem és szórakozási lehetőség vár rád. A tömegközlekedés is jól kiépített, buszmegálló 5 perc sétára található így a város többi részéhez is könnyedén eljuthatsz.

A lakás jellemzői:
- fémszerkezet teherhordó falakkal és hanggátló elválasztó téglafalakkal épült
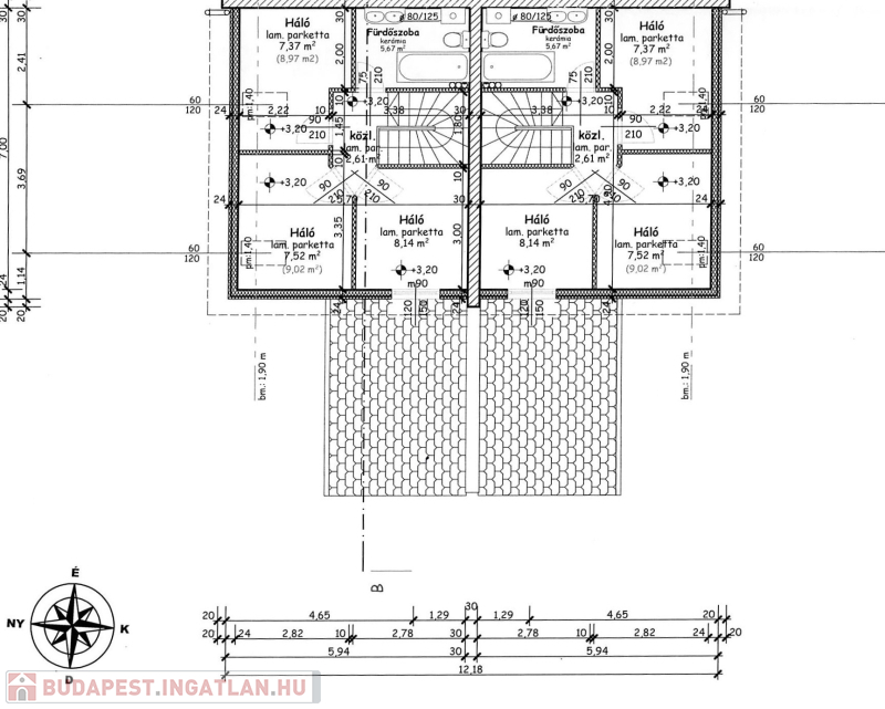
- nettó lakótér 76 m2 mely magában foglal 4 lakószobát, 2 fürdőszobát és nappalit külön
- a lakásokhoz osztatlan közös megosztással került kialakításra a saját telekrész, ezen ingatlanhoz okirat szerint 297 m2 csatlakozik
- a lakások külön mérő órákkal felszereltek (Villany óra, külön hőszivattyú, fúrt kút külön szivattyúval, lakásonként 10m3-es zárt szennyvíz tározó és klíma berendezés 3,5 kW kapacitással)
- a lakásokban mindenütt padlófűtés van kiépítve
- nyílászárók 3 rétegű üvegezéssel ellátott műanyag ablakok, a tetőtérben fa nyílászárók
- padlástérben 30 cm szigetelés, a homlozaton 15 cm hőszigetelés készült.
- átadás: 2026 március
- alapterület 76 m2+ 3,45 m2 kazánház+ 12, 47 m2 terasz

Az ingatlan babaváróval és CSOK+-al vásárolható!
Az Otthon Start hitel 2026. januártól igényelhető az ingatlanra!


Ha szeretnél többet megtudni erről a kivételes ingatlanról, vagy kérdéseid lennének a vásárlással kapcsolatban, bátran keresd fel a hirdetésünket! Bizalommal állunk rendelkezésedre, hogy segítsünk megtalálni álmaid otthonát vagy befektetési lehetőségedet. Ne hagyd ki ezt a páratlan ajánlatot, hiszen ez a lehetőség gyorsan el fog tűnni a piacon!

Családi ház részletei

Ár: 63 900 000 Ft
Méret: 76 négyzetméter
Azonosító: 11575350
Telek: 297 négyzetméter
Ingatlan állapota: Kitűnő
Jelleg: ikerház
Építőanyag: Kérdezzen rá a hirdetőtől »
Egész szobák: 4

Egyéb jellemzők

  • Garázs
  • Kábel TV
  • Melléképület
  • Parketta
  • Pince
  • Terasz

Így keressen budapesti ingatlant négy egyszerű lépésben. Csupán 2 perc, kötelezettségek nélkül!

Szűkítse a budapesti ingatlanok
listáját
Válassza ki a megfelelő
budapesti ingatlant
Írjon a hirdetőnek
Várjon a visszahívásra