Eladó családi ház Gyula 57 900 000 Ft

Leírás

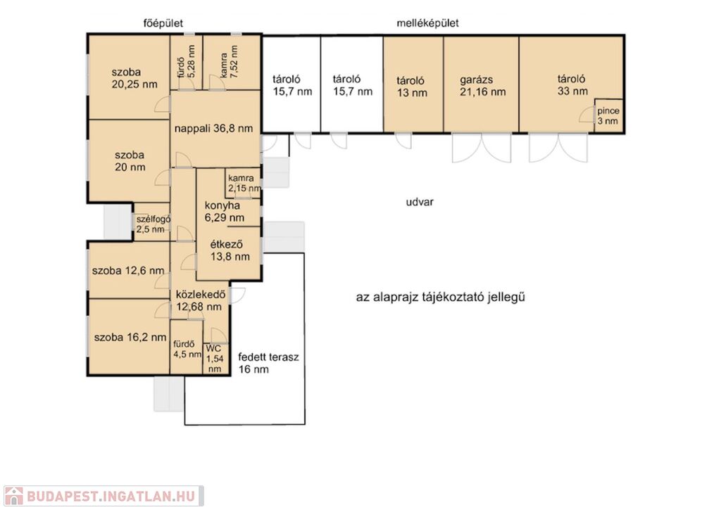
Nagycsaládosok figyelem! Jó elrendezésű, jó szerkezetű, kétgenerációs ház vált eladóvá Újvárosban.

Az ingatlan egy 1304 nm alapterületű telken található. A ház első fele 1964-ben épült tégla falazattal, a másik épületrész 1983-ban épült hozzá szintén tégla falazattal. Ebben a jó szerkezetű házban 4 tágas szoba, 2 fürdőszoba, 2 különálló WC, egy tágas nappali, 2 kamra és külön konyha, étkező is helyet kapott. A ház tetőszerkezete szintén nagyon jó, így ezzel biztosan nem lesz gondja az új tulajdonosnak még jó pár évig. Az ingatlan fűtéséről radiátorok mellett két csempekályha és egy vaskályha gondoskodik, a radiátor működtetése gázkazánról és vegyes tüzelésű kazánról is megoldott. A nyílászárók fából készültek 2 rétegű üvegezéssel.
Az ingatlanhoz duplatelek tartozik, melyben egy nagy méretű melléképület is helyet kapott, ebben akár garázsnak, akár műhelynek is jut bőven hely. Az előkertnek köszönhetően a ház nem utcafronton található. A kertben számos virág mellett szőlő, ribizli és málna is helyet kapott.

Az ingatlan egy nagyon csendes, átmenő forgalomtól mentes utcában található. A közelben található iskola, óvoda, játszótér, élelmiszerbolt, de a vasútállomás is mindössze néhány perces sétával elérhető.

Nagyon jó elrendezésének és tágas tereinek köszönhetően itt mindenkinek jut saját szoba, így kifejezetten ajánlom nagycsaládosoknak vagy családalapítás előtt álló fiataloknak.

Hívjon mielőbb és egyeztessünk időpontot a megtekintésre, higgye el tetszeni fog!
(További képekért és információkért kérem hívjon!)

Családi ház részletei

Ár: 57 900 000 Ft
Méret: 133 négyzetméter
Azonosító: 11507269
Irodai azonosító: 631037
Telek: 1304 négyzetméter
Ingatlan állapota: Átlagos
Jelleg: családi ház
Építőanyag: Tégla
Fűtés jellege: Cirkó
Egész szobák: 4

Egyéb jellemzők

  • Beépíthető tetőtér
  • Csatorna
  • Garázs
  • Melléképület
  • Pince
  • Terasz

Így keressen budapesti ingatlant négy egyszerű lépésben. Csupán 2 perc, kötelezettségek nélkül!

Szűkítse a budapesti ingatlanok
listáját
Válassza ki a megfelelő
budapesti ingatlant
Írjon a hirdetőnek
Várjon a visszahívásra